Haus S
Berlin, Germany
HAUS_S in Berlin Lichterfelde
Das Haus war weitestgehend noch im Originalzustand, mit schönen, für diese Epoche typischen, schlichten Altbaudetails wie Eichenparkettböden, einer Stuck-Hohlkehle als Übergang zwischen aufgehenden Wänden und Decken, schlichten Vollholztüren und Messingbeschlägen sowie einem Mosaikfliesenboden im Eingangsbereich. Jedoch entsprachen die Küche, die Bäder und die Haustechnikinstallationen nicht mehr dem aktuellen Stand und den heutigen Wohnbedürfnissen. Das Dachgeschoss war umausgebaut und beherbergte lediglich in einem kleinen Teil ein ausgebautes Zimmer.
Wunsch der Familie war es, das Haus auf einen technisch-energetisch, aktuellen Stand zu bringen und die Grundrisse der einzelnen Etagen auf die heutigen Wohnbedürfnisse anzupassen. Im Rahmen der Vorentwurfsplanung habe ich einen Maßnahmenkatalog erstellt. Dieser Umfasste alle sanierungs-, modernisierungs- und Umbauarbeiten sowie die Ausstattung. Schnell wurde klar, dass die gesamte Maßnahme in mehreren Zeitabschnitte realisiert werden muss, um genügend finanziellen Spielraum zu haben. Hierbei wurde der Schwerpunkt der ersten Umsetzungsstufe auf den Wohnwert gelegt, dass heisst, dass die Umbaumaßnahmen, die Modernisierung der Oberflächen wie Wände, Böden und Decken, sowie die Einbaumöbel im Vordergrund standen. Daneben wurden auch die sanitären Leitungen und die Heizleitungen erneuert, ebenso wie die gesamte Elektrische Anlage.
2. Phase
Die energetische Sanierung des Hauses mit dem Einbau einer Luft-Wasser Wärmepumpe und der energetischen Ertüchtigung der noch originalen Berliner Doppelkastenfenster aus Holz, sowie dem Fassadenanstrich und der Lackierung der Fenster und Läden, sollen in einer zweiten Umsetzungsstufe realisiert werden.
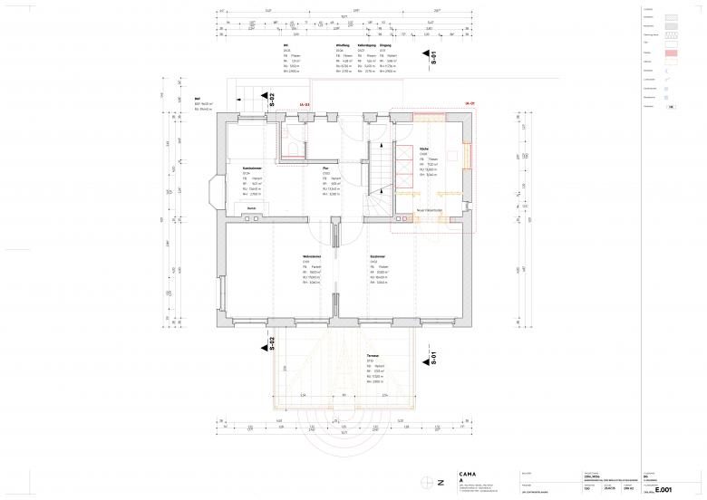
Die alte Küche war sehr kleinteilig mit mehreren Kammern und einer relativ kleinen Tür zum Ess- und Wohnbereich geöffnet. Die Kammern wurden zurückgebaut, die Wandöffnung zum Esszimmer wurde vergrößert und es wurde in der Achse des Durchgangs ein neues, festverglastes Fenster eingebaut, welches mit einer Sitznische kombiniert ist und das Zusammensein rund um den Herd unterstützt. Auch das Fenster zum Vorgarten wurde erneuert und gegen ein modernes, nach außen öffnendes Schwingfenster ausgetauscht, da das alte Fenster für die neue Arbeitsplattenhöhe zu tief in der Wand saß. In Kombination mit der raumgreifenden Küchenzeile, welche sich mit einer Rundung bis in das Esszimmer schiebt, entstand so eine moderne, offene Wohnlandschaft, welche das Kochen und Essen in den Mittelpunkt des Familienlebens rückt.
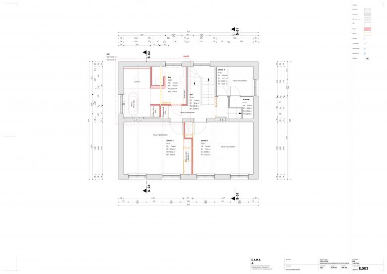
Das Familienbad im Obergeschoss war neben der Küche ein wichtiger Baustein bei der Modernisierung des Hauses. Das alte Bad war viel zu klein für vier Personen und bot zu dem keine bodengleiche Duschmöglichkeit, sondern nur eine Badewanne. Neben der kompletten Neuinstallation der Sanitärleitungen , Abwasser, Kalt- und Warmwasser sowie Heizung und Elektro, musste ein kleines separates Zimmer mit dem alten Badezimmer zu einem neuen Raum zusammengefügt werden. Ein wichtiges Merkmal des neuen Bades ist das separierte WC. Das Badezimmer ist zwar ein offener Raum, jedoch in verschiedene Zonen eingeteilt, so dass das Nebeneinander der Familienmitglieder im alltäglichen Rhythmus nicht zu Störungen führt. Duschen und Baden ist ein Bereich, das WC ein anderer und das schnelle Händewaschen und Zähneputzen neben der Tür. Das neue Bad ist licht und hell und lässt einen entspannt in den Tag starten.
Neben diesen beiden Hauptaufgaben, gab es noch eine Reihen von kleinen Maßnahmen, welche dem Haus insgesamt einen hellen und freundlichen Charakter verschafft haben. So waren die vielen Holzarbeiten im alten Haus, zum Beispiel im Flur mit dem Kamin, dunkel bis schwarz gebeizt und führten so zu einem sehr rustikalen und introvertierten Ausdruck der Räume. Wunsch der Baufrau war es, die Räume hell und freundlich zu gestalten. Ein Farbkonzept zeiht sich durch das gesamte Haus und verbindet die Etagen mit einander. Die rote Treppe ist der bunte Dreh- und Angelpunkt des Hauses. Eine neue Sitzecke mit Liegemöbel hat sich mittlerweile als Lieblingsecke der Familie entwickelt, Hier wird Vorgelesen und gemeinsam entspannt. Das Dachgeschoss wurde ausgebaut und neben dem Wohnflur und zwei Schlafzimmern, ein zusätzliches Badezimmer eingebaut, mit Dusche und WC.

























