Erweiterung und Sanierung Kantonsschule in Sargans
Sargans
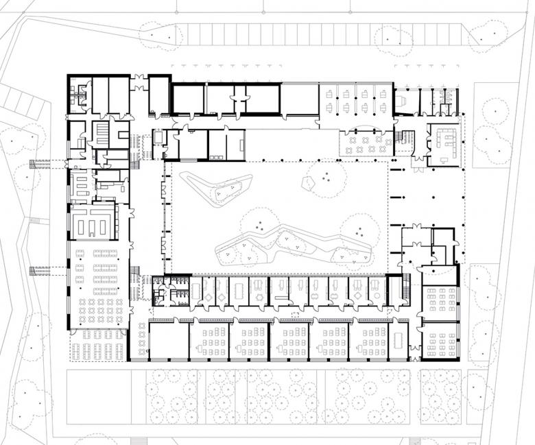
Nach dem Rückbau bis auf den Nord- und Osttrakt formuliert die Ergänzung zusammen mit den bestehenden Bauteilen eine Gesamtanlage um einen zentralen, identitätsstiftenden Hof. Die auch für den Abendbetrieb nutzbaren Allgemeinräume der Schule, Mensa und Aula, werden im neuen Westtrakt zusammengefasst. Die gegen Süden hin ausgerichtete Mensa bietet attraktive Sitzmöglichkeiten im Freien. Die naturwissenschaftlichen Unterrichtsräume im bestehenden Nordtrakt werden mit zusätzlichen Räumen im unmittelbar angrenzenden Westtrakt ergänzt. Im neuen Südtrakt befinden sich Klassenzimmer und die Verwaltung mit dem Lehrerbereich. Durchgehende Erschliessungskorridore bieten in den Obergeschossen kurze Verbindungswege, einen optimalen Betrieb und eröffnen immer wieder den Blick nach Aussen. In diesen erweiterten Korridorzonen befinden sich jeweils die einladenden Aufenthaltsbereiche. Der Nord- und Osttrakt werden weiter betrieben, die Eingriffe werden auf das absolut Notwendige beschränkt.
- Architects
- ERP Architekten AG_____ egli rohr partner
- Year
- 2010
- Client
- Hochbauamt des Kantons St. Gallen
- Landschaftsarchitekt
- Uniola AG
- Visualisierung
- Swiss Interactive AG












