World Building of the Week
JR Nippo Main Line Kirishima-Jingu Station Renovation
In the forested hills of Kirishima, a city in Japan's Kagoshima Prefecture, sits Kirishima-Jingu, one of the Shinto shrines that help attract visitors to the southern end of the island of Kyushu. The Kirishima-Jingu Station serving the shrine underwent a renovation that weaves wood columns, beams, and ceiling into the existing concrete structure. Architect Takuma Kawaguchi answered a few questions about the renovation his Tokyo studio recently completed.
We accepted the appointment by IFOO, a company based in Kagoshima Prefecture that operates a wide range of businesses, mainly in architecture, for the renovation of a station building that would be the beginning of a small town development led by the private sector to revitalize the station area.
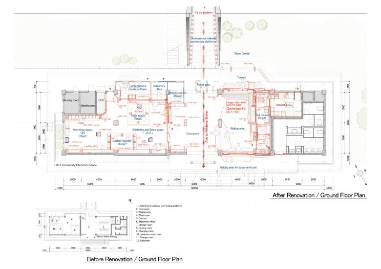
In addition to the renovation of the waiting area and concourse, the idea of a station that enriches the waiting time led to using space in the station building for food and beverage, selling products from the prefecture and Kyushu, and a workshop space for community exchange, which are planned and operated by IFOO.
The existing exterior of the station is preserved, but benches and terraces have been installed, conveying the bustling nature of the station to the neighborhood. Inside, from the underground passage/concourse, a visual axis extends northeastward from the station building toward the Kirishima Shrine, and a large-diameter sacred pillar, 1100 mm wide and 330 mm thick, called Goshinbashira, is placed at the center of the station building. Due to its size, this large pillar was designed to double as an earthquake-resistant element with the existing RC (reinforced concrete) structure. Visitors weave between the delicate wooden structure of the ceiling and the large tree-like pillars.
We thought that this station would be a place where the forest of Kirishima Shrine and human activities, as well as tranquility and bustle, coexist and are enjoyed.
The huge mass of trees and rocks in Kirishima and the solemnity of the forest at Kirishima Shrine inspired our design. Since this is a renovation, we reconsidered the existing RC frame as the building site. The station building separates the forest from the town, and by occupying the forest of giant trees inside the RC frame, it led to a design loosely connecting and mixing the two.
The fact that our client, IFOO, is an excellent construction company and specializes in wooden construction gave me the opportunity to think about a space that makes use of their high carpentry skills. With the cooperation of the Department of Architecture and Architectural Engineering and Department of Agriculture, Kagoshima University, we were able to cut large trees from the field practice forest (a research forest owned by Kagoshima University), which reinforced our initial idea.
Just before the completion of the construction, there was a sudden need to add an underground passage to the renovated area, so a wooden structure with a continuation of round pillars and round beams was considered. They strengthened the axis to Kirishima Shrine, allowing visitors to acquire a rich sequential experience.
We start our designs by carefully picking up and reading hints that are often overlooked in everyday life, hidden in the city, the land, and the climate. At the same time, I want to delve deeply into materials, phenomena, and construction methods to create architectural newness that represents and is rooted in the place.
Email interview conducted by John Hill.
Location: 465 Kirishima Okubo, Kirishima-shi, Kagoshima-ken, Japan
Client: IFOO CO.
Architect: Takuma Kawaguchi Architect & Associates, Tokyo
- Design Principal/Project Architect: Takuma Kawaguchi
- Project Team: Kojiro Iida, Tomoya Shinune
Contractor: IFOO+VEGAHOUSE
Construction Manager: IFOO (Kenta Hioki)
Station Building Owner: Kyushu Railway Co.
Community Design and Management: IFOO CO.
Wood Procurement and Use: Environmental Architecture Laboratory, Kagoshima Univ.
Sawing: Iwamoto Seizai
Site Area: 32,653.00 m²
Building Area: 233.59 m²
















