World Building of the Week
James Baldwin Media Library & Refugee House
Situated in the 19th arrondissement of Paris, the James Baldwin Media Library & Refugee House recently opened in the former Jean Quarré upper secondary hospitality school from the 1970s. The architects at associer (formerly atelierPhilippeMadec) sent us some text and images on the adaptive reuse project.
The high cultural and social value of the chosen brief is unique in the world. It encompasses a neighborhood cultural facility and a place dedicated to the integration of exiled people on the territory of Paris. The media library joins the four media libraries of the city of Paris that possess a “Center for the Deaf” to welcome the public communicating with sign language. The Refugee House brings together under one roof all the aspects of refugees’ path to integration, in a convivial place of encounter and sharing.
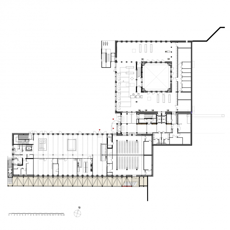
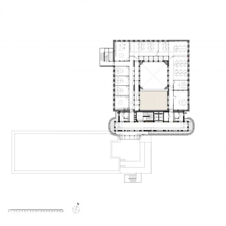
The former secondary school structures have been preserved, cleaned, and had asbestos removed. Prefabricated elements like reinforced concrete posts, beams, floors, and façade panels were refurbished. A selective deconstruction of concrete floors, walls, and façade panels was conducted, with cut-off pieces kept on-site for reuse. This process restored the structure's regularity and improved the quality of the exposed reinforced concrete. As a result, ideal spaces for a media library and welcome center have been created.
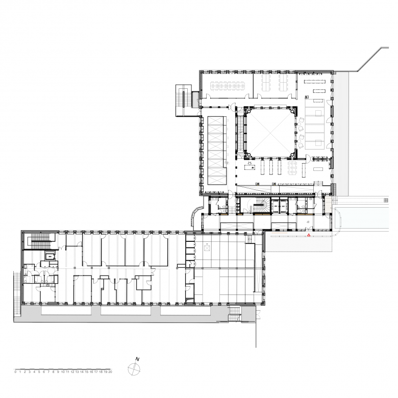
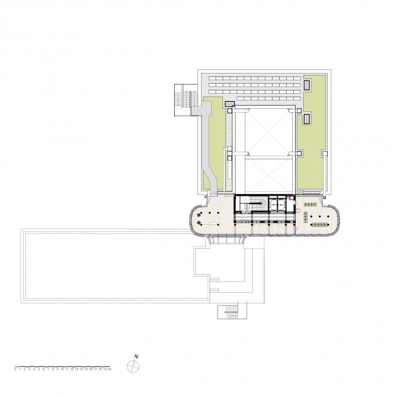
The project is a bioclimatic design, drawing on the resources useful for its proper functioning in its environment. The now refined existing structure enjoys enhanced penetration of natural light. The exposed structure offers soft surfaces and rich textures, and provides inertia favorable to the improved regulation of the interior temperature. The entire project also provides enhanced natural and hygienic ventilation, namely through the creation of interior, double-height hoppers and of an air well with the garden in the patio.
Taking an ecologically responsible approach, the architects have achieved a thorough renovation of the existing situation with a new construction made of biosourced and “geoscourced” material. The buildings, the square media library and elongated refugee house, are joined by a vertical volume, called “the link,” which serves the different levels and spaces of these two establishments. The walls of this unheated wooden construction are made of prefabricated poured earth, guaranteeing thermal inertia and regulated humidity. A wooden mantilla envelops the link whilst also serving as a high-protection sun filter.
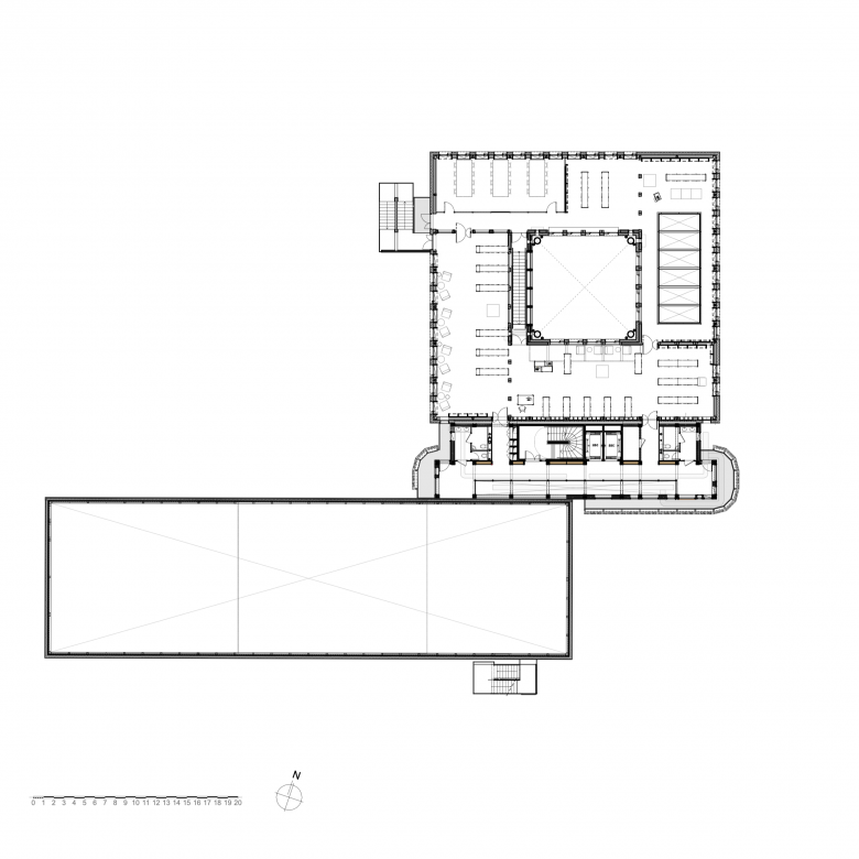
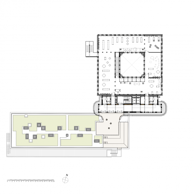
The tall post and beam structure provides a welcoming space for refugees and residents to enjoy beverages, learn French, and cook. It features spacious areas and diverse places with specially designed acoustics for everyone's comfort. A long terrace facing south offers relaxation moments and access to a shared garden.
The project reversed the waterproofing on 70% of the surface of the lot. Open ground reappears everywhere: in the patio at the center of the media library, on the forecourt, the shaded garden, the shared garden and on the terrace of the Refugee House. The effort to counter the urban heat island effect is organized through increased green surfaces, the implementation of light-coloured ground cover (recycled concrete slabs and stabilized sand), and a shallow pool between the shared garden and the shade garden.
Location: 12bis rue Henri Ribière, Paris
Client: Dcpa/Samo, DAC, DSOL (Ville de Paris)
Architects: associer (atelierPhilippeMadec)
- Lead Architect: Philippe Madec
- Project Managers: Yann Le Métayer, Estelle Nguyen, Nathalie Dectot
Landscape: Mutabilis
General Engineering Consultant: Igrec Ingenierie
Wood Structure Engineering Consultant: Gaujard Technologies
Acoustics: Aab
Building Area: 4 406 m²


















