World Building of the Week
Frame 122
Three years ago, the New York City Building Code was updated to allow the use of cross-laminated timber as a low-carbon alternative to other construction materials. The first mass timber project approved and built under the code revision was just completed: Frame 122, a five-story apartment building in Brooklyn, designed by Brent Buck Architects for Frame Home. The architect and client answered a few questions about the project.
What were the circumstances of receiving this commission?Brent Buck Architects had worked with the client previously on their personal apartment. Located at 122 Waverly Avenue in Clinton Hill, Brooklyn, the five-story development advances Frame Home’s mission to push the boundaries of sustainable, thoughtful urban living.
Frame 122 is the first mass timber project approved and constructed in New York City under the 2022 NYC Building Code, which enables the use of cross-laminated timber (CLT). It followed Frame 283, the very first Frame Home project. Completed in 2020 at 283 Greene Avenue, Frame 283 was the first residential building in NYC to use CLT, achieved after Frame Home successfully fought for an exception to use CLT at a time when it was not yet permitted under the city’s building code. This pioneering effort paved the way for future CLT projects and proved that sustainable materials could meet rigorous safety standards while offering aesthetic and environmental benefits.
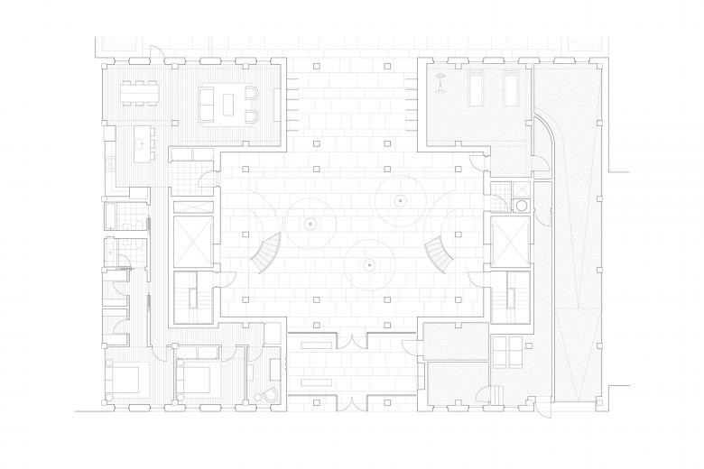
In addition to the mass timber components, other defining features include the central courtyard and exterior egress stairs. A courtyard allows for a moment of quiet and respite from the busyness of New York City. An exterior lobby provides a timber clad point of entry that hints at the building’s wooden structure. Two curving exterior stairs provide access to each apartment and encourage interaction with the courtyard. Many New York City apartments have two exposures: front and back. The goal of the project was to create at least three solar exposures for every apartment. This allowed most interior rooms, including bathrooms, to be daylit.
Frame 122 represents Frame Home’s ongoing commitment to changing the landscape of residential development. By proving that luxury and sustainability can coexist, the Frame Home team aims to set an example for other New York City developers and pave the way for a greener urban future.
The building is constructed according to Passive House standards, ensuring maximum energy efficiency and reduced environmental impact, with beautiful exposed CLT ceilings and exposed glulam (another mass timber product) for beams and columns. The 15 residential units, which include both two- and three-bedroom apartments, feature solar arrays that power much of the building, while triple-pane windows and high-performance insulation help to maintain temperature control and reduce heating and cooling costs.
Brent Buck Architects utilizes timber and reclaimed wood throughout our work. Our goal is an architecture that combines rigor with the warmth of craft to create spaces which are loved by those who occupy them. Frame 122 accomplishes these goals.
Email interview conducted by John Hill.
Location: Brooklyn, New York, USA
Client: Frame Home
Owner’s Representative: CV Partners
Architect: Brent Buck Architects, Brooklyn
- Design Principal: Brent Buck, AIA
- Project Architect: Sarp Arditi
- Project Team: Joanna Ptak
MEP/FP Engineer: ANZ Consulting Engineering
Lighting Designer: Dot Dash
Interior Designer: Brent Buck Architects
Construction Manager: CM and Associates
Expediter: William Vitacco Associates
Mass Timber Supplier: Element5
Site Area: 10,000 sf
Building Area: 30,725 sf
Related articles
-
A Contemporary Gateway to Green-Wood Cemetery
Architecture Research Office | 04.05.2026 -
-
-
-

















