Zwei-Generationen-Haus in Ebmatingen
Ebmatingen, 瑞士
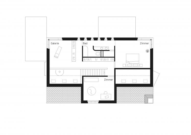
Um das ehemalige Einfamilienhaus zu einem Zwei-Generationen-Haus zu transformieren, wurde es nach Nordwesten erweitert und aufgestockt. Die interne Erschliessung erfolgt über zwei gegenläufige und zentral angeordnete Treppen. Dadurch ist die Ausrichtung beider Wohneinheiten ausgewogen. Eine Wohnung verfügt über 3.5 Zimmer mit 115 m2 und erstreckt sich vom Unter- bis ins Erdgeschoss. Die zweite ist eine 4.5 Zimmer-Wohnung mit 150 m2 über alle drei Geschosse. Die Wohn- und Essbereiche beider Wohneinheiten beinhalten einen überhohen Bereich und werden durch Oberlichter zusätzlich belichtet.
Auftraggeber:in
privat
Architektur moos. giuliani. herrmann. architekten.
Roger Moos, Christoph Schneider, Alexander Sperlich, Francesco Bellini, Charlyna Diggelmann
Bauleitung
moos. giuliani. herrmann. architekten
Dominic Bosshard
Statik
SJB Kempter Fitze AG, Eschenbach
Bauphysik
Herrmann Partner AG, Andelfingen
Fotografie
KASPARTHALMANN AG, Uster
Spezialist:innen
Film: Stephan Christen, Zürich
Eckdaten
2 Wohneinheiten, GF SIA 416: 444 m2
Bauzeit: 11 Monate
Bauvollendung: Juni 2020
- 年份
- 2020
- 项目状态
- 已建造


















