Reach 17
Wohlen, 瑞士
Das Areal setzt sich aus zwei Parzellen zusammen und befindet sich in unmittelbarer Nähe zur Stadtmitte Wohlens. Das Projekt «Bergère» besteht aus einem Treffpunkt für die Gemeinde, der Bewohner und Gäste mittels verschiedener Angebote anzieht. Das Projekt greift den kulturellen Kontext der Dorfgeschichte, insbesondere der Strohflechterei auf und formt ein flexibles Gefäss, für heutige wie zukünftige Gastronomiebetriebe, Arbeitswelten und Wohnformen.
Das architektonische Konzept basiert auf der Setzung von drei Baukörpern, die zwei eigenständige Zwischenräume unterschiedlicher Qualitäten generieren. Diese verbinden sowohl Quartier als auch Gebäude miteinander. Die Zwischenräume bestehen aus einem grosszügigen Aussenraum mit Brunnen sowie einem lichtdurchfluteten Innenraum mit Freitreppe. Die Anordnung der Gebäude ist so gewählt, dass sich das Areal zur Strasse hin in einer sich einladenden Geste öffnet und gleichzeitig den BewohnerInnen einen privaten Gemeinschaftsgarten als Rückzugsort bietet.
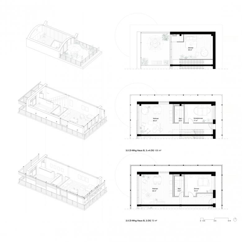
Die Nutzungen der Quartierläden, des Bäckers sowie der Markthalle verbinden sich über beide Baukörper und zwei Geschosse zu einer grosszügigen und offen gestalteten Einheit. An zentraler Stelle übernehmen eine repräsentative Wendeltreppe und der Brunnenplatz eine Schlüsselfunktion. In den Obergeschossen werden sämtliche Wohnungen als Ost-West-Typologie organisiert. Die Wohnungen werden entweder klassisch über ein innenliegendes Treppenhaus oder über einen Laubengang erschlossen. Dadurch eröffnen sich verschiedene Grundrissoptionen, von 2.5 Zi.-Wohnungen über 3.5 Zi.-Maisonettewohnungen, bis hin zu 4.5-Zi.-Familienwohnungen. Im Baukörper an der Ecke Friedhofstrasse / Bifangstrasse befinden sich aufgrund der Gebäudeausrichtung und exponierten Stellung die Büroräume. Über diese Nutzungsverteilung gelingt eine klare Trennung der Erschliessung der Wohnungen und gewerblich bzw. öffentlich genutzter Räumlichkeiten. Dadurch wird die Privatsphäre der Wohnungen erheblich gesteigert, was in Bezug auf die Wohnqualität einen grossen Mehrwert darstellt.
Über die gewölbeförmigen Dachabschlüsse wird ein kontextueller Bezug zur einstigen Blütezeit der Strohflechterei und Hutfabrikation beabsichtigt. Das Dach wird zur fünften Fassade, setzt der Architektur ihren «Hut» auf und wird zum identitätsstiftenden Element.
Eine vorgehängte Fassade aus feingliedrigen Stahlelementen strukturiert das Gebäude in horizontaler und vertikaler Richtung, wodurch ein stimmungsvolles Ganzes erreicht wird. Vorspringende, abgestützte Balkone greifen das Motiv der Dachabschlüsse auf und führen es horizontal weiter.
Die Gebäude sind in Holzhybridbauweise konzipiert. Wo immer möglich, werden Bauteile als modular, vorfabrizierte Elemente verbaut. Dieses einfache, aber sehr effiziente System ermöglicht maximale Flexibilität in der Nutzung und Raumabtrennung. Die Konstruktion ist rückbaubar, denn die einzelnen Bauteile werden gefügt: Primär-, Sekundär- und Tertiärstruktur sind getrennt erstellt, zerstörungsfrei ersetzbar oder nach Lebensende der Gebäude rückbaubar und somit wiederverwendbar.
Zur Reduktion der Grauen Treibhausgase werden für die Geschossdecken als auch für die Fassadenkonstruktion nachwachsende Rohstoffe eingesetzt. Die Fassade besteht aus vorfabrizierten Holzmodulen mit einer Verkleidung aus keramischen Platten. Für alle betonierten Bauteile an dem Standort mit hohem Grundwasser soll Recyclingbeton mit CO2-reduziertem Zement zum Einsatz kommen.
- 年份
- 2023 Wettbewerb
- Project Status
- 设计















