Neubau "Zum Hemmensberg"
Bodenackerstrasse, Alten, 瑞士
Städtebau
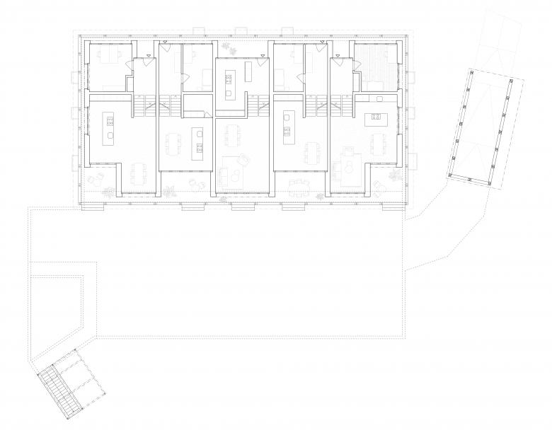
Mit einem präzise gesetzten Reiheneinfamilienhaus-Neubau wurde das kleine Dorf im Zürcher Weinland ortsbildverträglich nachverdichtet. Dank seiner zum benachbarten Bauernhaus abgedrehten Positionierung entstand nordseitig ein grosszügiger Vorplatz.
Typologie
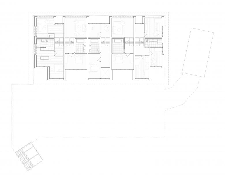
Die 5 Häuser sind unter einem grossen Dach ohne Aufbauten zusammengefasst, das sich in der Grösse und im Erscheinungsbild an den umliegenden Scheunenbauten anlehnt. Hinter der umlaufenden Holzstützenreihe springt die Fassade vor und zurück, womit trotz der unmittelbaren Nähe zum Nachbarn witterungsgeschützte Aussenräume mit maximaler Privatsphäre geschaffen werden.
Innenraum
Die schmale Grundfläche der Reiheneinfamilienhäuser wird mit grosszügigen Raumhöhen kombiniert. Der Grundriss erlaubte von möglichst offen bis zu möglichst vielen Zimmern verschiedene Varianten, die mit den Käufern nach ihren Bedürfnissen ausgearbeitet wurden. Herzstück der Häuser ist die offene Treppe mit weissen Metallstaketen und parkettbelegten Stufen, die sich durch alle Geschosse zieht.
Energie
Die Einstellhalle mit Erdsonden-Wärmepumpenheizung wird mit dem benachbarten Bauernhaus geteilt. Dank optimierten Aussendämmungen, Bodenheizung und 3fach verglasten Holz-Metallfenstern wird der Energieverbrauch niedrig gehalten.
Umgebung
Jedes Haus hat ihnen zugeordnete Sitzplätze und Rasenflächen, die innerhalb der biodiversen Blumenwiese als «Inseln» ohne Zäune ausgebildet sind.
- 年份
- 2023
- 项目状态
- 已建造
- Bauleitung
- TriBau AG
- Bauingenieur
- Werner Locher
- Brandschutz
- inexo
- Haustechnikplanung
- 3-Plan Haustechnik AG
- Elektroplanung
- Wick Engineering AG
- Fotografie (Aussen)
- Björn Siegrist
- Fotografie (Innen)
- Module Plus















