Hochhaus Allschwil
Allschwil, 瑞士
In Zukunft soll die Binningerstraße in Allschwil zu einem lebendigen Standort für Gewerbe, Dienstleistungen und Wohnungen werden, die Lebensqualität soll durch neue Grün- und Freiräume sowie eine bessere Vernetzung gesteigert werden. Ein neu entwickelter Masterplan sieht eine Mischung aus verschiedenen Nutzungen vor. Das Ortsbild wird durch die ehemaligen Ziegelhallen geprägt. Ein kürzlich entschiedener Wettbewerb zur Umnutzung des Ziegelei-Areals Ost wurde vom Team Pool Architekten gewonnen, das den Bestand geschickt mit neuen Gebäuden kombiniert hat. Der Hochhausentwurf von Superdraft Studio ergänzt das Projekt und stärkt die städtebauliche Struktur, indem er die Außenräume gezielt aufwertet.
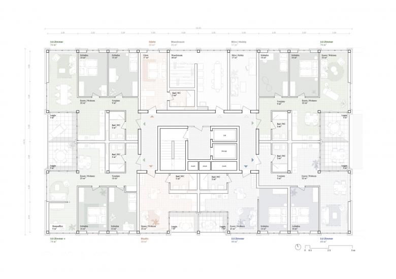
Der Wettbewerbsbeitrag umfasst ein Wohn- und Geschäftshochhaus, dessen Sockelgeschoss die Architektur der historischen Produktionshallen stilisiert aufnimmt. Der Sockel wird mit einem Arkadengang versehen, der den öffentlichen Raum bereichert und die Verbindung zum angrenzenden Freiraum stärkt. Das Hochhaus selbst setzt eine markante städtebauliche Akzentuierung und schafft zusammen mit einem benachbarten Hochhaus eine zentrale grüne Insel, die als öffentlicher Raum dient. Das Gebäude kombiniert verschiedene Nutzungen, von Gewerbeflächen in den unteren Stockwerken bis hin zu Wohnungen im oberen Teil.
Als tragende Struktur des neuen Gebäudes dient ein Skelettbau, der mit einem durchgängigen Raster gegliedert ist.Geschosse des Sockelbaus werden dabei als ressourceneffiziente Stahlbetonstruktur konzipiert, die Regelgeschosse sind mit Ausnahme des Kerns in Voll-Holzbauweise möglich.
Die Aussenräume werden in enger Abstimmung mit dem Masterplan gestaltet. Eine Promenade entlang der Binningerstrasse wird mit Grünflächen, Sitzgelegenheiten und Spielbereichen ausgestattet und dient als Begegnungsort für die Anwohner und Passanten. Ein zentraler Platz vor dem Gebäude ist als urbaner Freiraum konzipiert, mit Bäumen, einem Brunnen und Sitzmöglichkeiten. Darüber hinaus sind auf dem Dach Gemeinschaftsräume und Gärten geplant, um die soziale Interaktion zu fördern.
Superdraft Studio wurde neben drei weiteren Architekturbüros eingeladen, einen Entwurf für den Standort auszuarbeiten. Auch wenn am Ende ein anderes Projekt für die Weiterbearbeitung auserwählt wurde, hat das Team mit seinem Entwurf einen spannenden Input zur Standortentwicklung beigetragen.
- 年份
- 2024















