Payette
Interdisciplinary Science and Engineering Complex
All universities experience growing pains, especially those in big cities. For Boston's Northeastern University, growth led them to a brownfield site south of some railroad tracks for its Interdisciplinary Science and Engineering Complex. Payette contributed a strong architectural statement that overtly expresses the design's deep sustainability principles through a "solar veil" facing southwest. The architects at Payette anwered a few questions about the building.
Location: Boston, Massachusetts
Client: Northeastern University
Architect: Payette
Design Principals: Kevin Sullivan, FAIA & Bob Schaeffner, FAIA
Project Architect: Wes Schwartz, AIA
Project Manager: Barry Shiel, AIA
Structural Engineer: LeMessurier Consultants, Inc.
MEP/FP Engineer: ARUP USA, Inc.
Landscape Architect: Stephen Stimson Associates
Façade Engineer: ARUP USA, Inc.
Interior Designer: Payette
Contractor: Suffolk Construction
Civil Engineer: Vanasse Hangen Brustlin Inc.
Lab Planner: Jacobs Consultancy
Building Area: 234,000 sf
Photographs: Keitaro Yoshioka, Warren Jagger Photography
Drawings: Payette
What were the circumstances of receiving the commission for this project?
The project was awarded through an international design competition completed in 2012.
Please provide an overview of the project.
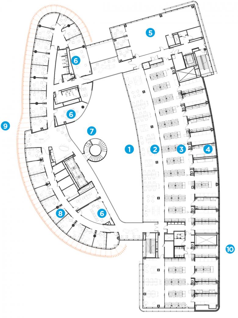
The Interdisciplinary Science and Engineering Complex is the first project expanding Northeastern University's academic and research campus to the south of a major rail corridor. Planned in conjunction with a new pedestrian bridge, the ground plane of the building is defined by the academic and public functions of a cafe, auditorium and flexible classrooms oriented around a six-story atrium forming a cultural nexus and cultivating a vibrant shared public realm. A gentle slope is constructed in the landscape to create accessible access to the bridge crossing with primary entrances to the building at both the street and bridge level inviting the flow of student traffic through the building. The project represents a major expansion of research at Northeastern University and provides a home for four interdisciplinary academic research disciplines: engineering, health sciences, basic sciences and computer science. Flexibly planned adaptable research space is designed to house labs for Biology, Bioengineering, Computational Biology, Genomics, High Through-Put Screening, Imaging, Materials Characterization and Metabolomics. Offices, conference rooms and break-out areas are oriented to the south of the atrium buffering the research labs from the harsh solar exposure.
What are the main ideas and inspirations influencing the design of the building?
The theme of Flow and Movement define the project. The form language of the building and the landscape express the dynamic movement systems that permeate the project expanding the campus and bridging two Boston neighborhoods. The cutting-edge facility allows the University to compete at a world class level as a premier research institution while defining a new student academic and social hub for the campus. The idea of research on display defines the expression of transparency on the interior with the primary research spaces fully glazed to the atrium as well as conference rooms providing high levels of transcparency across the space.
How does the design respond to the unique qualities of the site?
The sloping ground plane of the landscape creates both an accessible path to the pedestrian bridge and acts as a shield protecting the site from the active tracks. The landscape is defined by paths and clusters of spaces like pebbles in a stream that lead to the track crossing and tie directly into the building. The primary volume of the office pod is raised opening the ground floor of the atrium to the site as an extension of the landscape, with continuous paving and the concrete volume of the auditorium flowing from outside in. Defined by a curving bronze solar veil, the low-energy office volume expresses the flow of the landscape while shading the office spaces from southwestern exposure. The high-energy lab bar is defined as a gray ribbed metal screen that lifts to reveal a glass volume as it enters the atrium. Extending the language of the veil, the guard panels on the pedestrian bridge will be articulated by layered sheets of weathering steel.
Was the project influenced by any trends in energy-conservation, construction, or design?
Planning the programmatic layout in conjunction with energy use allowed us to design a highly effective cascade air system. Air is supplied to the low-energy office areas and cooled by chilled beams. Air is drawn from offices through the atrium where it is recycled through the lab supply, feeding the high-energy research spaces. This results in a highly controlled laboratory space that minimizes variable solar and thermal loads. Daylight and occupancy sensors, coupled with LED lighting, minimize energy usage, while large, carefully shaped skylights provide controlled daylight to labs. Low energy office space is oriented toward the south and west exposure and is shaded from the sun by a system of curved bronze sunshades attached to a triple glazed unitized curtain wall. The result of this integrated approach to planning and design is a building that will use 75% less energy than a typical research building.
Email interview conducted by John Hill.
相关文章
-
-
Phase Three C of The Anne M. Lynch Homes at Old Colony
The Architectural Team | 09.01.2023











