Yue & Yue: Yue Art Museum + Yue Equestrian Hall
Hebin Nanlu 99, Fushan district, , Yantai, China
project name: Yue & Yue: Art Museum + Equestrian Hall
Architect: CU Office
Client: Yantai City College of Science And Technology
Location: Hebin Nanlu 99, Fushan district, Yantai, China
Design Tasks: Architecture Design、Landscape Design
Building Type: Art Museum, Equestrian Hall
Floor area: 4500 ㎡
Design: 2023
Construction:2025
Principal Architect: Fei Che, Xuefeng Zhang
Design team: Shiguang Zhao, Gaojie Mu, Yitong Jie, Xiao Sun, Haifeng Chen, Yu Chen, Yaowen Zhang,Mingrun Huang
Collaborators:
Construction Design: Tong Yuan Design Group Co., Ltd.
Interior Design and Exhibition Design: Yue Art Museum
Equestrian Hall Consultant: Chen Fugui
Photographer : Jin Weiqi, Huang Shaoli
Design Description:
1.Project Overview
Situated within the campus of Yantai City College of Science and Technology, the Yue Art Museum and Yue Equestrian Hall (the two Yue are different Chinese characters with different meanings) form a multi-functional complex with a building area of approximately 4,500㎡. The equestrian facility, compliant with FEI (Fédération Équestre Internationale) standards, serves as a modern indoor venue equipped with climate-controlled ventilation and uniform illumination systems. Its integrated spaces include riding arenas, stables, administrative offices, and reception areas.
The art museum component operates as a university-affiliated institution dedicated to contemporary art, offering exhibition galleries, arts education workshops, and artist residency programs. Additional amenities comprise a café, studios, administrative offices, and storage.
2. When an Art Museum Meets an Equestrian Hall
Yantai City College of Science And Technology, a newly founded university, lies in inland of Fushan District, Yantai City, distant from coastal zones. Its campus occupies an emerging suburban area where commercial infrastructure remains sparse. With most students residing on campus, it was planned to have amenities to cultivate vibrant campus life. And the equestrian hall and the art museum were considered as key components in the initial conception of campus planning. The challenge of the intensive land use for both components sparked the architect’s proposal: Why not combine these two into a complex of equestrianism and fine arts? The architect's innovative idea was immediately accepted by the client.
3. Humanist traditions
Art and equestrianism share deep roots in humanistic traditions, tracing back to China's ancient "Six Arts" education system that cultivated well-rounded scholars (“Junzi” called in Chinese). The equestrian-art complex transcends its role as a recreational facility, serving as a vital embodiment of the university's educational mission. Rather than peripheral additions, the complex building implements the university's core belief: cultivating student’s physical vitality and aesthetic discernment constitute the essential goal in modern education.
4. Community engine
The equestrian-art complex serves not only as a shared space on campus open to students from different majors, but also as a window to the outside of the campus. Equestrian enthusiasts from all over the country and contemporary artists from all over the world come to this university and become part of this university community. With the influx of new students joining this community every year, the equestrian hall and art museum will provide this community with a steady stream of equestrian and art activities, becoming the engine of the entire community.
5. Architectural form
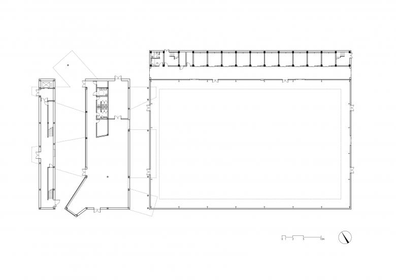
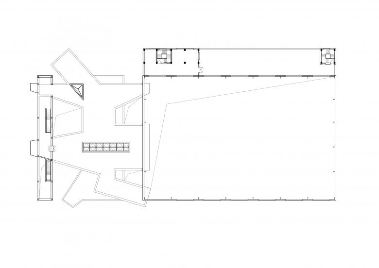
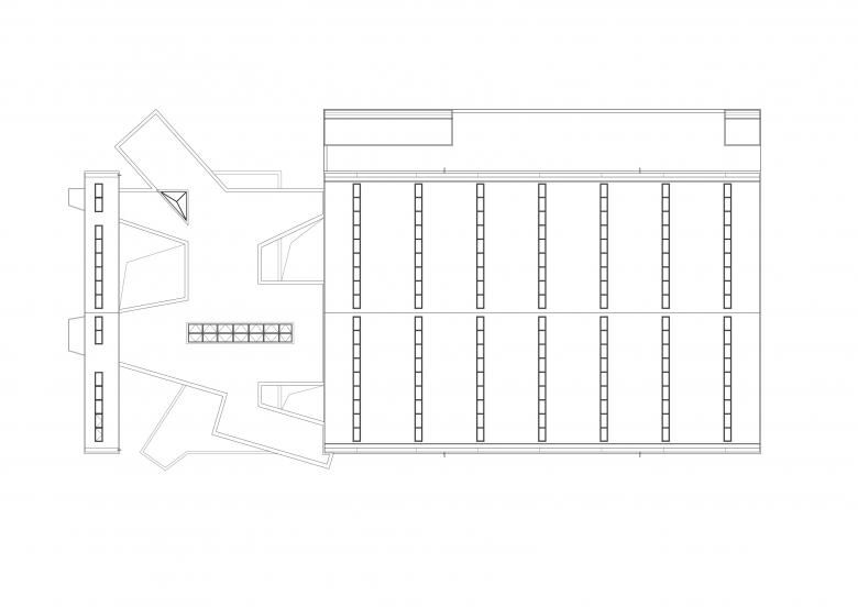
The complex of equestrian hall and art museum are located on east of the campus's north entrance. Due to site constraints and budget considerations, the architectural form of the equestrian hall and art museum must first adhere to the standard size specifications of an indoor equestrian venue. As a result, the primary structure is a simple rectangular space with a portal frame design.
The westernmost section of this rectangular space is partitioned to form the building's main facade. This gabled facade resembles that of an ordinary steel-framed factory-kind building, with the only distinguishing features being two small balconies and the entrance below. This minimalist design merges the traditional form of a stable—the cabin—with the classical structure of an art gallery—the basilica. Functionally, this narrow, elongated space serves as both a gallery and a circulation area for indoor traffic.
Behind the facade lies the heart of the art museum—an irregularly shaped space that extends in multiple directions. The architect drew inspiration from observing stables: the horse sticks its head out of the stable and looks around curiously. This concept is reflected in the design through multiple projecting windows, which face both the external street and the internal equestrian venue. Curiosity, as a driving force behind human knowledge and a fundamental aspect of university education, is embodied in this dynamic architecture.
This irregular shape in the middle of the building makes this rigid rectangular space more dynamic and creates some courtyard-like spaces that connect the facade building with the art gallery and the equestrian hall on east.. Additionally, the second floor of the facade building provides access to the rooftop.
The eastern section houses the equestrian hall, which includes a stable for approximately ten horses, service rooms, and an indoor riding arena. The stable and its auxiliary spaces are situated on the northern side, while the indoor arena occupies the southern portion.
In the end, these different functions and forms constitute a complex of equestrianism and arts, a complex of observation and movement.
- Arquitectos
- 超城建筑
- Ano
- 2025
- Status do projeto
- Built
- Cliente
- City College of Science And Technology
- Construction Design
- Tong Yuan Design Group Co., Ltd.
Projetos relacionados
Revista
-
-
-
A Construção da semana
Within Old Walls, a Breath of Fresh Air
Reichel Schlaier Architekten | 18.05.2026

































