Erweiterung Schulanlage Zelgli
Killwangen, Suíça
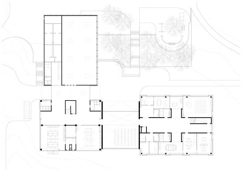
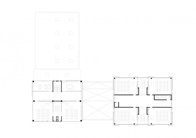
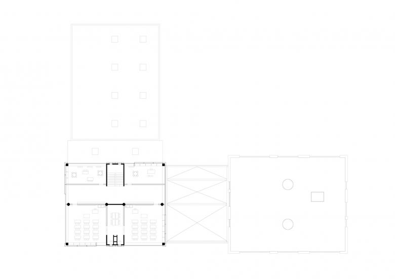
Die Schulanlage Zelgli befindet sich an zentraler Lage in Killwangen. In den 70er Jahren wurde die Schulanlage erstellt. Die Gebäudekörper fügen sich als abgetreppte Volumen gut in den Hang ein. Die beiden Trakte werden über eine mittige Erschliessungszone erreicht. Diese 1-geschossige Erschliessungszone fungiert als «Gelenk» der Anlage und tritt als beidseitig vollflächig verglaster Durchschussraum in Erscheinung. Die nun geforderte Erweiterung nimmt die Qualitäten und Charakteristiken der bestehenden Anlage auf und denkt sie weiter: Das neue Volumen wird östlich an den bestehenden Schulhaustrakt angebaut. Analog zur bestehenden Erschliessungszone wird auch hier mit einem eingeschossigen «Gelenk» an die Anlage angebaut. Hier werden die Aula und der gedeckte Pausenbereich untergebracht und können sowohl von den bestehenden Unterrichtsbereichen, wie auch vom projektierten Anbau direkt erreicht werden. Der neue Schultrakt tritt als zweigeschossiger Gebäudekörper in Erscheinung. Die neuen Unterrichtsräume im 1.Obergeschoss gliedern sich um eine innere Halle, die über 2 Lichthöfe gut belichtet wird. Im Erdgeschoss befinden sich die Räume für die Lehrerschaft. Über die Lichthöfe werden die beiden Ebenen visuell miteinander verbunden.
- Arquitectos
- SOPPELSA ARCHITEKTEN
- Ano
- 2016
- Cliente
- Gemeinde Killwangen
Projetos relacionados
Revista
-
-
Building of the Week
A Loop for the Arts: The Xiao Feng Art Museum in Hangzhou
Eduard Kögel, ZAO / Zhang Ke Architecture Office | 15.12.2025 -



















