Zentrumsplanung und Neubau Alterswohnungen, Brütten

© Géraldine Recker, Zürich

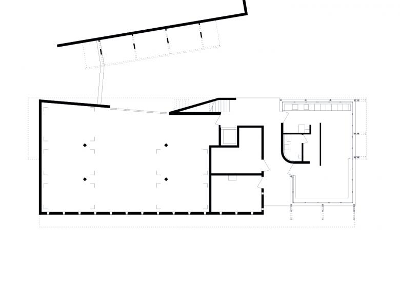
Zentrumsplanung mit vier Hochbauten und einem zentralen Grünraum – 1. Etappe: Zentrumsbau mit öffentlichen Nutzungen und Mehrfamilienhaus mit 6 Alterswohnungen

Wettbewerb: 2017 (1. Preis)
Projektierung und Ausführung: 2017-2021
ausgezeichnet mit dem „Architekturpreis Kanton Zürich 2022“

© Géraldine Recker, Zürich
© Géraldine Recker, Zürich
© Roider Giovanoli Architekten, Zürich
© Linea Landscape Architecture, Zürich
© Roider Giovanoli Architekten, Zürich
© Roider Giovanoli Architekten, Zürich
© Roider Giovanoli Architekten, Zürich
2021
Project Status
竣工済
クライエント
Gemeinde Brütten

Roider Giovanoli Architekten ETH BSA SIA によるその他のプロジェクト 

Mehrfamilienhaus Bergbach, Erlenbach
Erlenbach, スイス
Umbau Sophienstrasse, Zürich
Zürich, スイス
Genossenschaftliches Wohnhaus Nordstrasse, Zürich
Zürich, スイス
Wohnhaus am Waldrand, Effretikon
Effretikon
Wohnhaus Hubenstrasse, Schwamendingen
Zürich