Wohnhaus Hubenstrasse, Schwamendingen

Zürich
写真 © Laura Egger

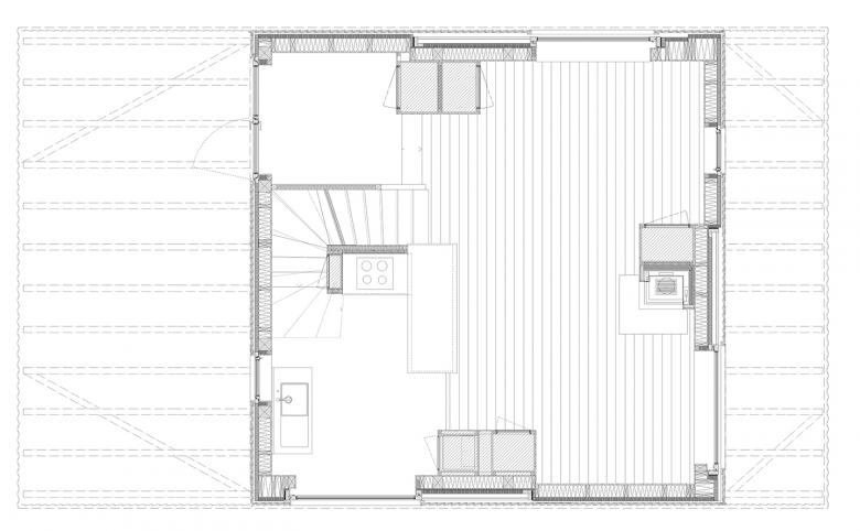
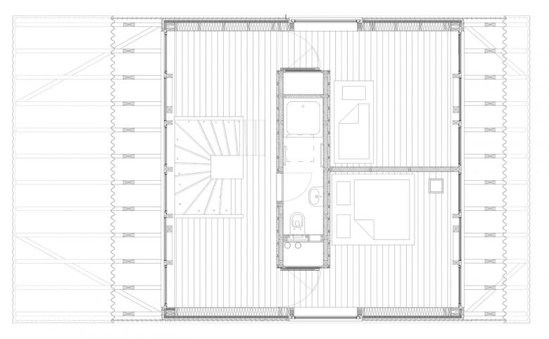
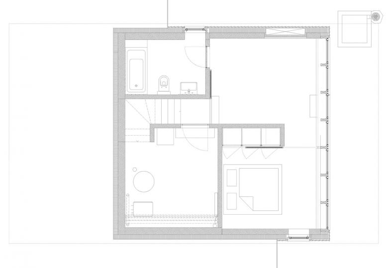
Ersatzneubau eines Einfamilienhauses | Projektierung und Ausführung: 2012-2015 | Bauherrschaft: Privat | Architektur und Bauleitung: Reto Giovanoli mit Philipp Imboden, Architekt ETH, Zürich | Fotos: Laura Egger, Zürich

写真 © Laura Egger
写真 © Laura Egger
写真 © Laura Egger
写真 © Laura Egger
写真 © Laura Egger
写真 © Laura Egger
写真 © Laura Egger
写真 © Laura Egger
写真 © Laura Egger
2015
Project Status
竣工済
クライエント
privat

Roider Giovanoli Architekten ETH BSA SIA によるその他のプロジェクト 

Mehrfamilienhaus Bergbach, Erlenbach
Erlenbach, スイス
Umbau Sophienstrasse, Zürich
Zürich, スイス
Genossenschaftliches Wohnhaus Nordstrasse, Zürich
Zürich, スイス
Wohnhaus am Waldrand, Effretikon
Effretikon
Zentrumsplanung und Neubau Alterswohnungen, Brütten
Brütten, スイス