Campus Rieter
Winterthur, スイス
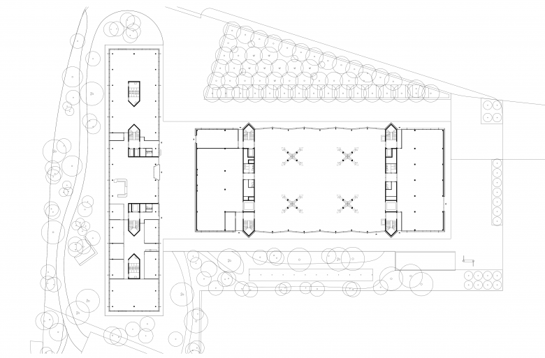
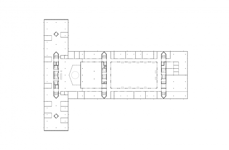
Der Neubau für den Hauptsitz der Rieter AG bildet einen markanten Kopf an der Stadteinfahrt in Winterthur Töss. Das neue Technologiezentrum und das Bürogebäude bilden eine Einheit, die linearen Volumen sind auf drei Geschossen miteinander verbunden, der Austausch unter den Mitarbeitenden wird gefördert. Die Fassade des Hauses verkörpert technische Präzision. Eine feine Haut aus abgekanteten, gestanzten Blechen weckt gleichzeitig Assoziationen an textile Gewebe. Unterschiedliche Transparenz steuert Ein- und Ausblicke und lässt das Gebäude je nach Tageszeit und Wetter geschlossener oder offener wirken.
- 年
- 2024
- Project Status
- 竣工済



















