Wohnhäuser Engelgasse
Teufen, スイス
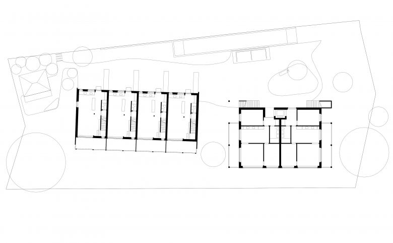
Die neuen Wohnhäuser stehen auf einer Geländekuppe und bilden den Übergang von Dorf zu Landschaft. Das „Appenzellerhaus“ und das „Heidenhaus“ bieten als Ensemble Wohnraum für acht Haushalte. Das Mehrfamilienhaus nimmt mit seiner weitgehend in Fensterreihen aufgelösten Hauptfront das charakteristische Bild des Abppenzellerhauses auf. Bandfenster und Fronttäfer gliedern die Holzfassade. „Abwürfe“ und „Chatzesteg“ bilden als horizontale Elemente konstruktiven Wetterschutz und erzeugen eine markante Tiefenwirkung. Das feingliedrige Fassadenbild wird mit Lisenen und Rautenmustern ergänzt. Diese Elemente stammen ursprünglich aus der Steinarchitektur, im Holzbau des Appenzellerhauss werden sie als Zierformen eingesetzt. Das Reihenhaus mit dem First parallel zum Hang und dem flach geneigten Dach nimmt Merkmale und Proportionen des Heidenhauses auf. Dem heutigen Bedürfnis des privaten Aussenraums wird mittels Laubenzone unter dem Vordach entsprochen. Die Laube wird von den typischen Wetterseiten räumlich gefasst. Beide Häuser sind in Holz konstruiert. Das Mehrfamilienhaus mit sichtbaren Balkenlagen im Inneren und in den seitlichen Lauben. Diese sind auf massive Holzstützen abgestellt. Ihre Ausbildung mit Basis und Kapitell zitiert klassizistisches Formengut – Stilmittel, welche als Abgrenzung von Bürger– und Fabrikantenhäusern zu einfachen Bauernhäusern schon im 18. Jahrhundert verbreitet waren.
- 年
- 2022
- プロジェクトステータス
- 竣工済
関連したプロジェクト
Magazine
-
-
Periphery as Method: On Architecture’s 'Dispositional Intelligence'
Guiomar Martín | 15.05.2026 -



















