Holzbau Galerie für das kreativ Treibhaus OHHO in Biel-Bienne
Biel-Bienne, Suisse
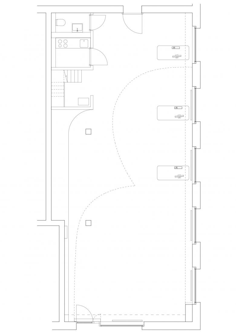
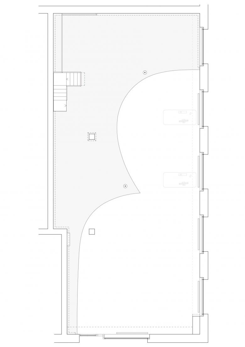
Der stützenfreie Galerieboden schafft, in dem knapp 5 Meter hohen Gemeinschaftsraum einer Fotografin und eines Komponisten aus Biel, rund 60 m2 zusätzliche Arbeitsfläche. Die geschwungene, konkave Linienführung lässt verschiedene Raumsegmente entstehen. Im Gegensatz zum rohen, orthogonalen Grundausbau weckt der hölzerne Körper Assoziationen zu Klangkörper und Holzinstrumenten.
Die abgesperrten Massivholzplatten wurden vor Ort schraubpressverleimt – ein Flächentragwerk ist entstanden welches linear an den Wänden und an einer Betonstütze aufliegt. An zwei Punkten ist die Galerie aufgehängt. Wahrscheinlich die grösste Sperrholzplatte der Schweiz?!
- Architectes
- VERVE Architekten GmbH SIA SWB
- Année
- 2019
- Statut du projet+
- Construit
Projets liés
Magazine
-
-
Bâtiment de la semaine
Within Old Walls, a Breath of Fresh Air
Reichel Schlaier Architekten | 18.05.2026 -
Periphery as Method: On Architecture’s 'Dispositional Intelligence'
Guiomar Martín | 15.05.2026











