Haus der Medizin, Umnutzung und Sanierung, in Klettgau
Klettgau, Germany
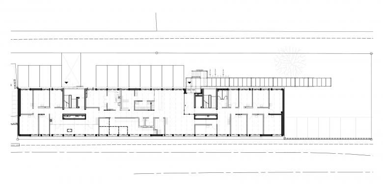
Das ehemalige Lagergebäude der Deutschen Bahn aus dem Jahr 1971 wurde einer neuen Nutzung rund um das Thema Gesundheit mit Wohnanteil zugeführt. Die Rippendecken und Stützkonstruktionen wurden sichtbar gelassen und die neuen zur Erdbebensicherheit benötigten Betonelemente gleichfalls sichtbar ausgeführt. Mit tiefergesetzter Brüstung blieben die Bandfenster erhalten. Der bestehenden Stützenstruktur wurde eine Holzbaukonstruktion mit vorgehängter, heterogener Fassadenhaut aus glasfaserverstärktem Polyester vorgebaut.
Auftraggeber:in
Haus der Medizin Klettgau AG, Neunkirch
Bauträger:in
GENU Partner AG
Architektur moos. giuliani. herrmann. architekten.
Yvonne Huber, Fabian Niggli, Peter Bührer, Roman Giuliani, Juval Mori, Roger Eifler
Bauleitung
LBM Partner AG, Schaffhausen
Statik
WSP AG Bauingenieure SIA usic, Schaffhausen
Bauphysik
Herrmann Partner AG, Andelfingen
Fotografie
moos giuliani herrmann architekten, Fabian Niggli
Eckdaten
GF SIA 416: 2700 m²
Bauzeit: 14 Monate
Bauvollendung: 2018
- Architects
- moos. giuliani. herrmann. architekten.
- Year
- 2018
- Project Status
- Built
Related Projects
Magazine
-
-
-
Building of the Week
Within Old Walls, a Breath of Fresh Air
Reichel Schlaier Architekten | 18.05.2026















