House of Tourism Stuttgart
The beating heart of Stuttgart is its market square – a vibrant meeting place for locals and visitors alike. Home to the weekly farmers’ market, the wine village and the world-famous Christmas market, it captures the city’s pulse throughout the year. It is here that the House of Tourism has found its place, in a building that once housed the Breitling clothing store. Ippolito Fleitz Group was commissioned to design the interiors of both the tourist information centre and the associated work environments.
The i-Punkt tourist information centre on the ground floor is open daily as the city’s primary point of contact for visitors. With two food outlets, one at street level and another on the rooftop, as well as publicly accessible workspaces for Stuttgart Marketing GmbH, the House of Tourism also has much to offer the people of Stuttgart themselves. More than a service hub, it acts as a starting point and a meeting place, responding to the needs of diverse user groups and creating a lively, contemporary focal point in the heart of Stuttgart.
A colourful mix of post-war architecture defines Stuttgart’s market square, with the 1950s city hall façade commanding one of its long sides. At the top of the square, the former Breitling clothing store completes the ensemble. Following the store’s closure, the city seized the opportunity to revitalise this prime location with the House of Tourism as an inviting destination for both residents and visitors.
Its extensive refurbishment, led by asp Architekten, focused on resource conservation and the use of organic-based materials wherever possible. Facing the market, the new façade is characterised by four vertical frame elements with dynamic perspective cutouts. These frame generous window fronts that open up views into the interior, allowing the activity within to become part of the façade itself – creating a sense of transparency, curiosity and connection between inside and out.
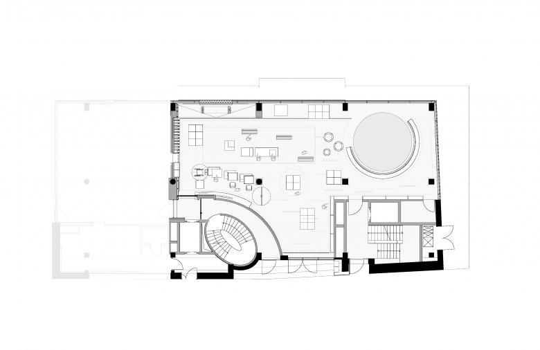
The i-Punkt tourist information centre
Countless shoppers and strollers pass by the House of Tourism on their way to the city’s popular Breuninger department store. At this prominent corner, an interactive stage opens the building to the outside world. Inside, a cinematic presentation space features a large-format LED wall that screens image films – even outside opening hours – drawing attention in from the street. Designed for both digital and physical presentations, the space hosts high-quality content from regional brand partners, ensuring a continually evolving programme that invites people to pause, watch and return for more.
The vertical interplay of space adds another layer of visual impact. The soaring air space inside rises upwards from the street-level i-Punkt to the first floor, articulated by iconic columns that accentuate the height and rhythm of the interior. A mirrored ceiling amplifies this effect, creating a sense of expansiveness and reflection. Facing the market, the columns feature large-scale motifs showcasing the region’s attractions, while their reverse sides integrate shelving systems that form a calm, ordered backdrop for a diverse selection of information material.
As the heart of the House of Tourism, the i-Punkt defines the building’s identity and public presence. The presentation of products and information is unified through a coherent design language that communicates outward with clarity and inward with a strong purchase appeal. Digital and analogue media surfaces promote Stuttgart, the surrounding region and the wider state of Baden-Württemberg as holiday destinations. Clearly structured zones for information, retail and brand partner offers ensure intuitive orientation, while flexible presentation furniture allows the space to be easily reconfigured for changing needs.
Regional products take centre stage in the i-Punkt as authentic ambassadors of place. Visitors and locals alike will find a curated selection of handcrafted items, culinary specialities, gifts and souvenirs. Generous display counters and a striking wine rack celebrate the diversity of regional winegrowers, positioning Stuttgart and its region as a destination for design-conscious foodies. A framed view into the adjacent restaurant completes the experience, encouraging guests to experience the city’s flavours for themselves.
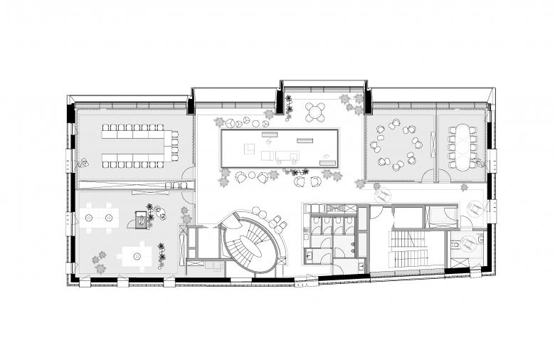
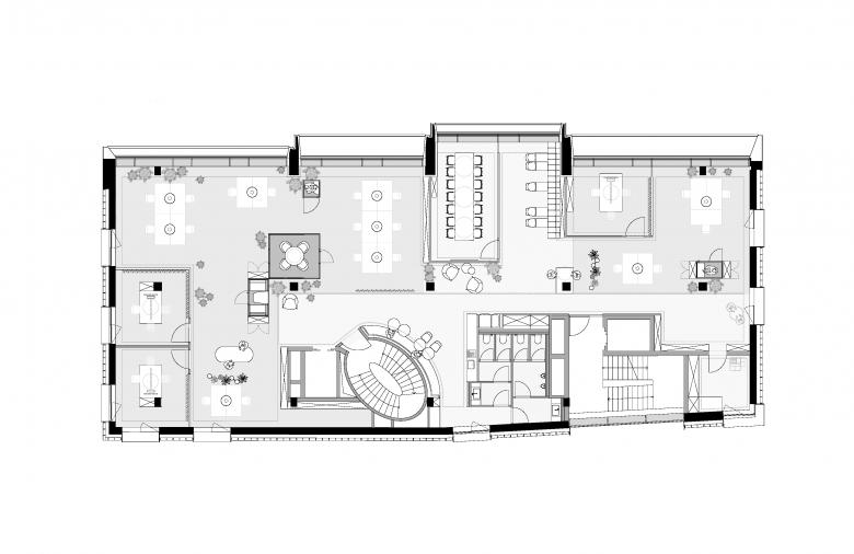
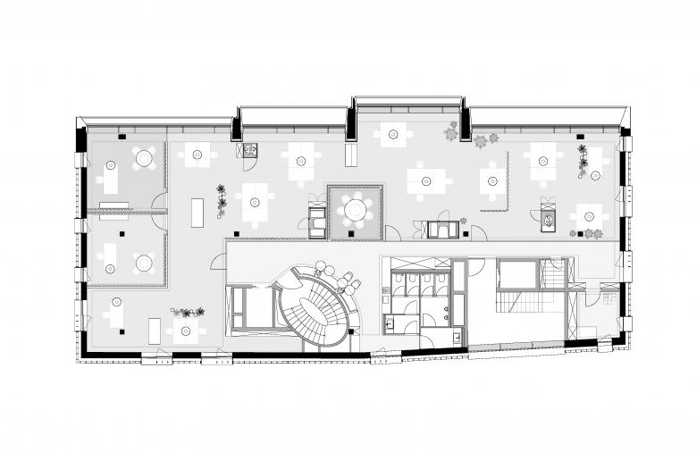
Work environment for Stuttgart Marketing
From the i-Punkt, visitors can see through the glass walls of the open atrium into the spaces on the first floor, where meeting, workshop and event rooms are located. These areas form part of the work environment for Stuttgart Marketing, but are also rented out to external parties. True to its name, the House of Tourism positions itself as an open centre – flexible, inclusive and suited to a wide range of purposes. The three rentable areas are each configured differently, yet share one defining feature: a sweeping view of the lively market square. The colour and material palette is derived from the corporate colours of Stuttgart Marketing GmbH, engendering a sense of belonging and visual coherence for employees.
The work environments of Stuttgart Marketing GmbH and Tourismus Marketing GmbH Baden-Württemberg (TMBW) extend across three floors, supporting a wide range of work modes: from concentrated and creative to collaborative and communicative. Tea kitchens and informal break areas on each floor are organised around the oval stairwell, a feature of the existing building. Within its curved rear wall, an alcove and a box-like shelving unit integrate both function and storytelling, displaying curated objects that weave a continuous narrative thread between the floors.
And everywhere, the view of the market square is ever-present. Here, the pulse of Stuttgart can be seen and felt at first hand and in real time, aligning the workspace’s atmosphere and purpose with the very essence of the city it represents.
- Year
- 2025
- Team
- Arsen Aliverdiiev, Manu Dhanked, Gunter Fleitz, Christelle Foulon, Sophie Hillebrand, Markus Schmidt Andrea Martinez, Peter Ippolito, Isabel Pohle,
- Total area i-Punkt
- 270 m²
- Total area office
- 1,380 m²
- Architecture
- asp Architekten
- Wayfinding, Spatial graphics
- Studio Tillack Knöll




















