SCHAUM/SHIEH
The Transart Foundation
The Transart Foundation for Art and Anthropology is a multifaceted platform for the creative activities of an artist and independent curator in Houston, Texas. Designed by SCHAUM/SHIEH of Houston and New York, the new building will house visitors, art, exhibitions and performances, and will host conversations that spark broader community dialogue about the role of art in our lives, providing a space for the critical intersection between art and anthropology.
Project: The Transart Foundation, 2018
Location: Houston, Texas, USA
Client: The Transart Foundation for Art and Anthropology
Architect: SCHAUM/SHIEH
Design Principals: Rosalyne Shieh and Troy Schaum
Design Team: Giorgio Angelini, Tucker Douglas, Ane Gonzalez, Nathan Kiebler, Kevin Lin, Anika Schwarzwald, Ian Searcy, Anastasia Yee
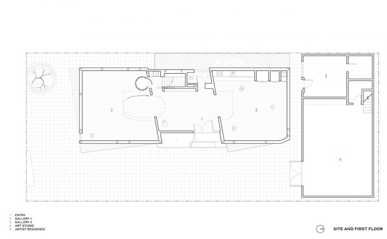
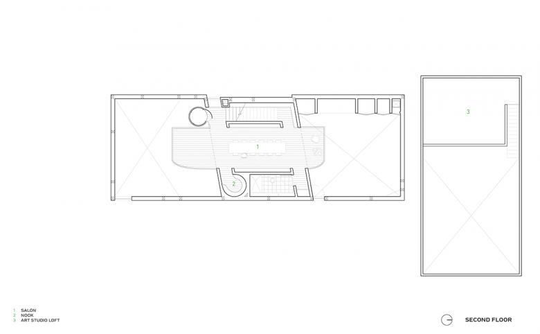
The project is designed around a 3,000-square-foot gallery and library. This large “living room” is punctuated in the middle by a circulation core that integrates steps and a library, expanding into a second-floor salon that is open to the space below, effectively dividing the gallery into two adjacent exhibition spaces. The front exhibition space, naturally lit and facing the street, is reserved for more traditional exhibitions, the back has less natural light and is reserved for new media or performance works that require lighting control. A cylindrical steel and acrylic elevator is positioned in the back of the core for alternative access.
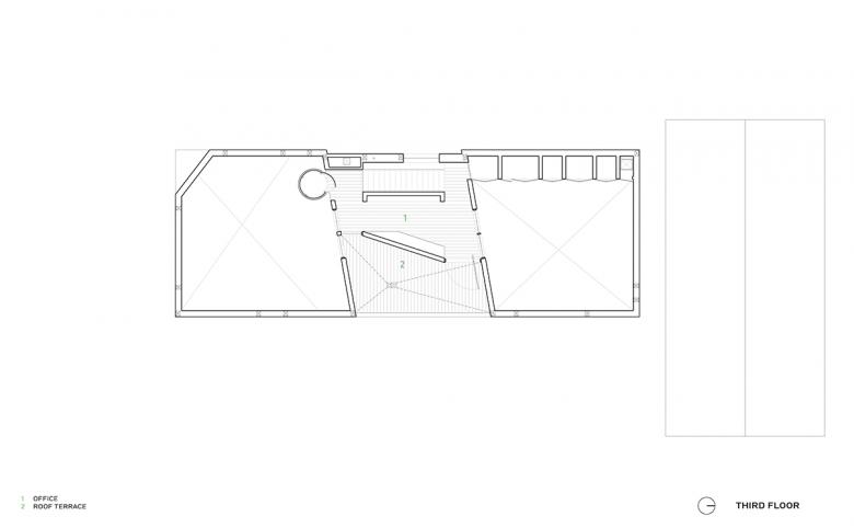
The second floor also contains an intimate space for one-on-one meetings or personal meditation and a bathroom. The third floor of the core contains an ample office and a roof deck and garden. Adjacent to the primary building, an existing photography studio on the site was wrapped in gray cementitious planks with a metal roof, providing extra space that will extend the potential for art programming and provide separate quarters for visiting artists and scholars.
The exterior facade of the primary building is smooth white stucco panels, creating a tectonic language in which the gaps and seams can let light in by forming swooping windows. The structure is built from thick heavy timber in a manner akin to a Dutch barn; carved so that the front corners come together precisely in front.
The modest scale of the Transart Foundation preserves an open relationship to the street and reinforces the walkability of the neighborhood, extending the tradition of the nearby Menil Collection, Rothko Chapel, and St. Thomas Campus. The curving fenestration of the envelope provides controlled indirect light for exhibitions and oblique views outward, while protecting the interior from direct solar gain. In particular, thick timber exterior walls filled with high rvalue closedcell insulation allow for high performance through conventional construction methods. A simple system of passive cooling is paired with a high-efficiency air conditioning system for further efficiency.














