Gloma House
The Project arises in a small land with a slightly slope, in the vicinity of Ansião Village.
Location: Leiria, Portugal
Client: Mateus e Glória
Architect: Bruno Dias Arquitectura
- Project Team: Bruno Lucas Dias Kevin Lopes Catarina Serra
Plumbing / Eletricity: Plumbing “Alvorgense”
Coating Materials: Carlos Silva e Miguel Ferreira
Metalworking: Systalprof
Area: 420m2
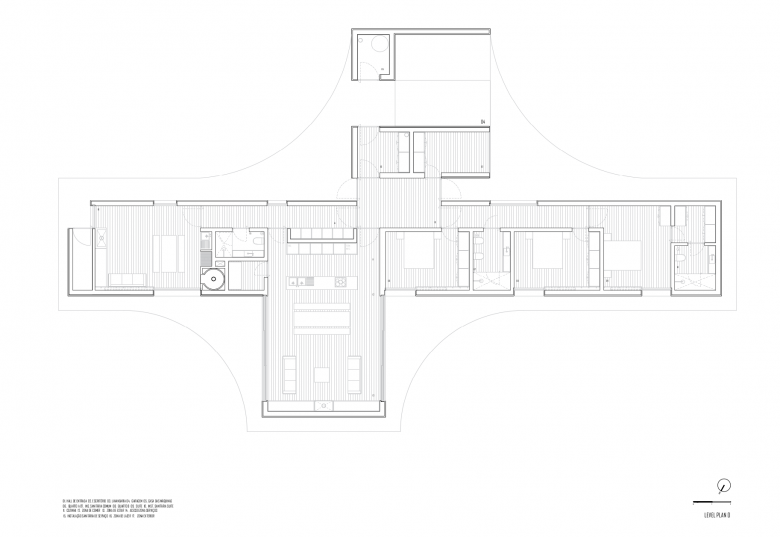
The departure point of the building is the permanent contact with nature. The construction is organized through a main axis which not only intends to solve all the workable program, but also operates as a border element of the social and the private areas. This one-story house is elevated from the floor maintaining some connection points which intend to achieve a symbiotic relationship.
The applied solution creates small patios through her shape, providing the simplicity of materials and shapes encountered on the nature that surrounds it.
Two concrete slabs with organic shapes define the exterior outline, creating a piece with a sense of freedom and consequently, diversity in the creation of the interior areas, as well as permeability with the exterior. The areas are thus not limited by walls but span out — with nature serving as the only boundary.
Related articles
-
'Just Another Fake' – Montemor-o-Novo Studio by Ai Weiwei
Eduard Kögel, Ai Weiwei | 19.05.2025 -
-
-
-












