World Building of the Week
Trofa Town Hall
The new town hall of Trofa, a small city located about 20 kilometers (12 miles) north of Porto, consisted of the renovation and expansion of an old industrial building. Completed in 2023, Trofa Town Hall was designed by NOARQ | José Carlos Nunes de Oliveira, who answered a few questions about the project.
What were the circumstances of receiving this commission?In 2016, the municipality of Trofa invited us to participate in a pre-qualification competition, requesting the portfolio and fee proposal for the refurbishment, renovation, and expansion of the former Indústria Alimentar Trofense building. The purpose of this selection process was to choose a team to transform the old industrial buildings into the new Trofa Town Hall. In response to this request, we submitted our portfolio and a fee proposal and participated in interviews with the city mayor and administration. The municipality selected our team to develop the Town Hall project, named RAIAT (Rehabilitation and Refunctionalization of the Former Indústria Alimentar Trofense Facilities).
This is a difficult question that I would rather not answer. Explaining how my building is unique requires a reflection and description that might come across as self-praise. I believe this answer should come from others. Moreover, I think all projects are unique. Being unique is an inherent reality of each building. In my opinion, uniqueness is not necessarily an architectural quality in itself. Never before, like today, have the individuality and the narcissism been so cultivated at the expense of the collective — of the whole. The result, to use a euphemism, is not always interesting.
The history of architecture is rich in repetitions of the same themes. "Repeating is never just repeating," Siza once wrote. Architects revisit their own research or historical precedents with slight variations. Sometimes happens, these variations seem to be better than the original idea. The architect's mission is to find the best response for the future while being conscious of the past, using the best resources of their time.
Despite my reluctance to think the uniqueness as a supreme value, I believe the Trofa Town Hall project has some singularities that make it — it might be more correct to say, distinct:
- Trofa is Portugal’s youngest municipality, making this the youngest municipal building in the country, but it’s not an architectural attribute.
- It is a Town Hall that emerges from an unusual circumstance—the deconstruction of a symbol of power. It is born from the rehabilitation, refunctionalization, and expansion of an industrial structure that lacks symbolic or architectural representation.
- The building acts as a covered Agora, designed so that citizens feel it as their own — the “House of Everyone.”
- It is a building conceived with sustainability and environmental concerns in line with 21st-century architectural priorities — important but not knew.
- In form, it can be understood as a sculptural exercise, seeking specificity in its cutouts, tailored to each function, space scale, and urban or formal meaning.
- Despite its dense and complex program, the building is a synthesis of matter, form, and design, appearing simple but meticulously detailed and constructed, with a design that remains consistent from its urban form to its architectural space and down to the finest construction elements.
- Despite its dense and complex program, it is a building designed as a synthesis of matter, form, and design, seemingly simple to understand but carefully and rigorously detailed and constructed. It has a design that appears coherent throughout its entirety — from the urban form to the architectural form/space, all the way to the finer definition of each constructive element; and how its definition contributes to the identity of the whole.
I don't know... Maybe the inspiration comes from the history of architecture; from the history of Trofa; from the books, the literature, the art — pieces that leave us in silence. Perhaps from Vitruvius; from the Portuguese constructive traditions; perhaps from the emptiness of the ruins of the industrial halls on the site; the dim light of romanesque churches, or the soaring light of Gothic cathedrals. Maybe from the blind walls of medieval buildings… from the essentiality of Kahn and Corbusier, or from the precision of Siza's details. Perhaps it's from the horizontality of the classical government buildings; or maybe simply from the sweat of my team and from the knowledge of my engineers. Certainly, from the process of constant sketching, revision, and doubt.
There isn’t just one inspiration, there are many.
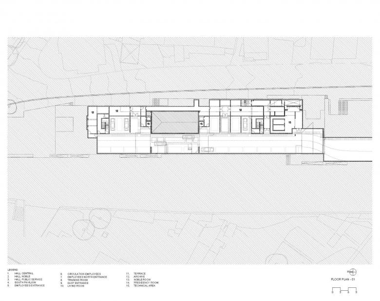
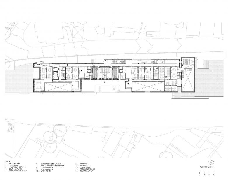
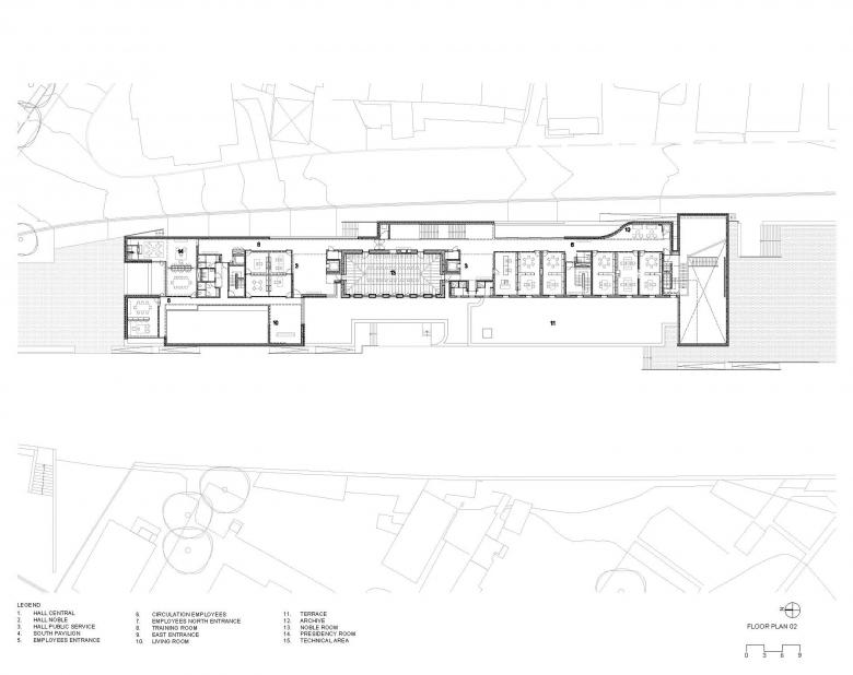
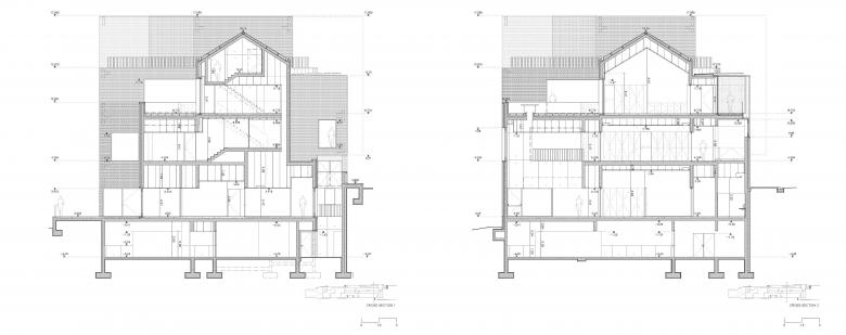
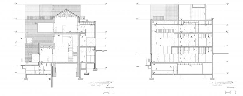
As I mentioned earlier, the long, black, seemingly massive and anonymous building presents itself as a ghost of the former industrial constructions that once lined the railway tracks from Trofa to the railway station. A site measuring approximately 23x200 meters naturally limits and defines the shape of a dense and elongated building — such as a municipal hall.
- To the north, the building stands tall and exposed to the city's noble and central space — the Nossa Senhora das Dores Park, marked by the chapel at its center.
- To the east, the façade is smaller in scale, just like the street. Its form varies in response to the urban masses, which include single-family homes and industrial warehouses.
- To the south, the façade is designed like a theater stage, opening onto the public parking area, which slopes downward toward the building like an audience watching a performance.
- To the west, the long façade of the Town Hall prominently displays the original industrial structure at its center.
I never felt disturbed by ambitions, opinions, or adjectives in our project review meetings with the client (the Mayor and his commission). The client was both the owner and the future user of the Town Hall. The client was the Portuguese state, represented by local government. The municipality was led by the Mayor, Dr. Sérgio Humberto at the time, assisted by six councilors. The Mayor, four councilors, advisors, and department directors formed a project monitoring committee.
This meant that the client’s power was not concentrated in a single person. Perhaps for this reason, the client was never autocratic, egocentric, or capricious during the project. Both the client and the design team were in the same position — it was the first time either of us had developed a municipal hall project.
Dialogue was the foundation of our understanding between the designers and the client. At the very beginning, I asked that individual demands be avoided, ensuring that no member of the committee became a separate "individual client." That would have been unbearable—impossible to manage the project.
The client was proactive and even invited us to visit the Seixal Town Hall as a typological model. I didn’t like the building, but the visit was useful. There were extensive debates about organization and workflow structures, budget constraints, functionality, and building management models. However, these discussions never restricted the project's conceptual or formal decisions. I believe they recognized our credibility. We always defended an architectural proposal that transcended both place and time.
There were no major changes, only continuous revision and formal and constructive refinements — a process, as I mentioned, of decantation and synthesis. This was perhaps the most challenging and rewarding project I have ever undertaken, considering the huge jump in scale for me and my team. The building was from the doubts We had no preconceived ideas. In the beginning, the project was shapeless, full of hesitations.
We knew we wanted something solid and timeless, but we weren’t sure how to achieve it, either in a general sense or in the details. The process was one of gradual refinement, shaping the design step by step, like a sculpture. We avoided immediate, easy solutions or superficial tricks to mask the challenges. This commitment to truth generated more anxiety. The experimental process creates anxiety. However, I knew that, with persistence, we would arrive at the right solutions.
So, as I said, there were no changes, only redefinitions, adjustments, characterization, continuous improvement, and conceptual reinforcement. However, some persistent challenges remained a long time:
- Defining the solid brick, stereotomy, shape, and color — we considered everything from the traditional red (23 x 11 x 7 cm), to the flamed silver (33 x 13 x 5 cm), before finally deciding on the integral black clay (48 x 10 x 4 cm).
- The east façade was the most difficult problem to resolve — I believe this is clear when observing the building.
- The halls, marked by staircases (central and south), went through several rounds of design revisions.
I think this project really reflects the NOARQ identity. Like our other projects, it is the product of a thought process developed by hand, stage by stage, starting from a shapeless mass that is gradually sculpted and refined. I think this genetic imprint is evident in the object.
Despite its particularities in form, material, or color, when observed carefully, the affinities with all previous projects are recognizable. This project is the result of all experiences and themes explored in smaller-scale programs — mainly private houses:
- It has the black, massive, sculpted expression of RPFV House;
- It features the floating, monolithic marble staircases of C&R and FC houses;
- It incorporates the vernacular wooden structures tested in VN Pavilion and later revisited in the GTS headquarters or in QST House;
- It adopts the zinc materiality of Casa NP House;
- It integrates solid brick, zenithal light through a double-height void, and a sculptural staircase, inspired by my first house, twenty five years ago, the JPC House.
The themes are repeated but they are never the same.
Like all our projects, it emerges from the gravity of the earth. Each façade is shaped by a cut, by a movement, by an opening, or by a framed city view. At NOARQ, no shape, color, or line is added without a justified necessity.
The urban and architectural solution is committed to concrete, timeless, Vitruvian principles. For this reason, the building is fundamentally constructive, aiming for eternity — like a bunker.
The design opposes the demands of our time, seeking simplicity without being obvious, without appearing forced. Its coherence is sustained by pure, orthogonal, ordering geometries.
The form and spatial design are refined through difficult-to-explain variables, understood only through the repetition of sketches and models—abstract, invisible elements such as proportion and scale.
Like all our buildings, it follows a rule of continuity and coherence in the lines that define spaces — the drawing has its own rules and demands correction when not respected.
As with all our projects, this building is essential. It is a material synthesis, composed of one, two, three, at most four materials — because the most striking architecture we know is made from a single material. But not only for this reason — also for economic efficiency and construction management… among other NOARQ particularities...
Email interview conducted by John Hill.
Location: Trofa, Porto, Portugal
Client: Câmara Municipal da Trofa - City Council of Trofa
Architect: NOARQ | José Carlos Nunes de Oliveira, Porto/Trofa
- Design Principal/Project Architect: Arch. José Carlos Nunes de Oliveira
- Project Manager: Arch. André Oliveira (1st Phase Building), Arch. Gaia Ferraris (2nd Phase Interiors)
- Project Team: Arch. Hugo Araújo, Arch. João Quintas, Arch. Sara Bitossi, Arch. Giulia Furlotti, Arch. Juliana Sampaio, Arch. Bruna Cerutti Franciscatto, Arch. Daniel Veludo
MEP/FP Engineer: GPIC Projetos, Consultoria e Instalações, Lda – Eng. Alexandre Martins and Eng. Pedro Barreira
Furniture Design (Brass table lamps, floor lamps, tubular lamps): NOARQ
Contractor: Telhabel Construções, SA
Construction Manager: Eng. Fernando Santos, Eng. Rui Caldas
Supervision: JFA Engenharia – Eng. Octávio Santiago Almeida and Amaro Gomes
Acoustics: InAcoustics Engenharia Acústica, Vibrações e ambiente, Lda – Eng. Octávio Inácio and Eng. André McDade
Gas and Climatization: GET Gestão Energia Térmica, Lda – Eng. Raúl Bessa and Eng. Miguel Alves
Site Area: 6,200 m2
Building Area: 6,400 m2
Related articles
-
'Just Another Fake' – Montemor-o-Novo Studio by Ai Weiwei
Eduard Kögel, Ai Weiwei | 19.05.2025 -
-
-
-
























