World Building of the Week
Thoravej 29
In 2021, pihlmann architects won a competition organized by the Bikuben Foundation to transform a 1960s factory in Copenhagen into a community hub. The firm founded by Søren Thirup Pihlmann repurposed nearly every component from the existing building, making it a model of adaptive, cyclical reuse. The architects sent us some text and images on the recently completed project.
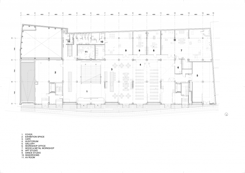
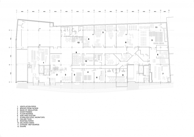
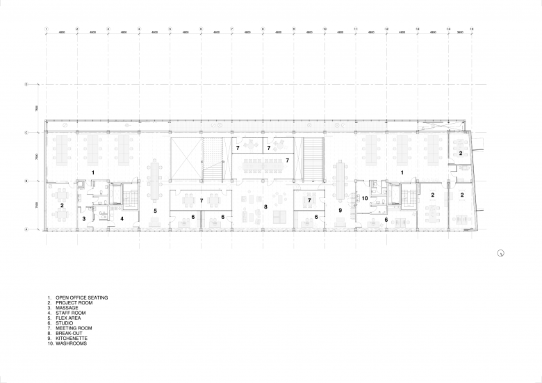
Slabs tilted into stairways, façades reorganized into pavement, doors morphed into furniture: utilize every possible element. The transformation highlights pragmatic reuse of materials and components and explores the architectural value of the already existing.
The transformation, turning a former factory from the 1960s into an open community hub, centers on the concept of self-recycling within the building. Each layer of the structure, even those traditionally deemed insignificant, is viewed as an asset. 95% of the existing was retained, repurposed according to its inherent qualities to meet new programmatic needs.
The various components reflect changing times, functions, and expectations. They present themselves as an architectural pentimento. On the one hand, it seems recognizable by virtue of the elaboration of existing components. On the other hand, unexpected synergies are created when elements appear in a new constellation and functions within a rewritten context.
As a result, an informal architecture emerges, marked by subtraction rather than addition, revealing echoes of its origins. The architectural heritage of the building is intuitively recognized and reinvigorated within a cyclical system.
Location: Copenhagen, Denmark
Client: The Bikuben Foundation
Client Advisor: Emcon A/S
Architect: pihlmann architects, Copenhagen
Engineer: ABC Consulting Engineers
Brand Strategy: Studio C
Wayfinding: Borg Brückner
Interior Consultant: Sara Martinsen
Building Integrated Art: Minae Kim, Santiago Mostyn, Martine Syms, Wu Tsang
Lifecycle Analysis Consultant: Kristoffer Negendahl, Ph.D, Technical University of Denmark
Contractor: Hoffmann A/S
Building Area: 6,224 m2



















