Frances M. Maguire Hall for Art & Education

A 21st-Century Museum in a 19th-Century Residence

Baird Architects | 16. February 2026
Photo © Michael Moran
What were the circumstances of receiving this commission?

Baird Architects worked on a comprehensive plan for Woodmere Musuem, through which we identified a need for further exhibition and storage space. When neighboring Maguire Hall become available, the director of Woodmere, Bill Valerio, identified it as a solution.

Photo © Michael Moran
What makes this project unique?

It combines a 19th century historic estate with exhibition needs of contemporary arts culture, and it has new ideas regarding connection to the estate grounds.

What is the inspiration behind the design of the building?

Fusing historic landscape with contemporary programming and breathing new life into an old estate that may have otherwise been demolished.

Photo © Michael Moran
How did the site impact the design?

Contemporary ethos of environment and landscape, as expressed through the work of Andropogon, transformed the relationship between the building and the grounds.

 

To what extent did the owner, client, or future users of the building affect the design?

Bill Valerio (Woodmere director) was an active collaborator and pushed the design team to maximize arts and community impact.

Photo © Michael Moran
Were there any significant changes from initial design to completion?

The initial scope was to add a freestanding auditorium as well as a restaurant to the back, which due to budgetary constraints are now part of a second phase of construction.

How does the building relate to other projects in your office?

Like many of our adaptive reuse projects, it is the juxtaposition of traditional historic preservation with contemporary architectural expression.

Email interview conducted by John Hill.

Photo © Michael Moran
Project: Frances M. Maguire Hall for Art & Education
Location: Philadelphia, Pennsylvania, USA
Client: Woodmere Art Museum
Architect: Baird Architects, New York
  • Design Principal: Matthew Baird
  • Project Architect: Paul Golisz
  • Project Team: Anna Creatura, Le Xie
Associate Architect: Krieger Architects
Structural Engineer: Keast & Hood
MEP/FP Engineer: Altieri Sebor Wieber LLC
Landscape Architect: Andropogon Associates
Contractor: Sullivan Construction
Building Area: 17,000 sf
Basement Plan (Drawing: Baird Architects)
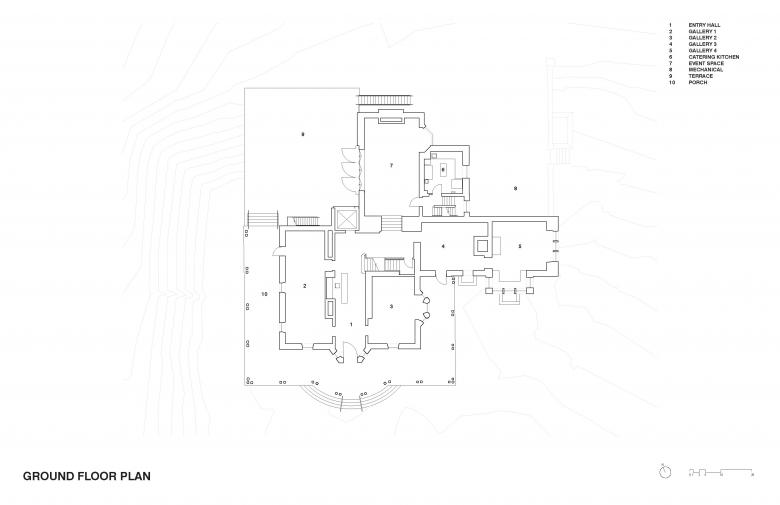
Ground Floor Plan (Drawing: Baird Architects)
Second and Third Floor Plans (Drawing: Baird Architects)
Building Section (Drawing: Baird Architects)

Related articles 

Featured Project 

Atelier KI JUN KIM

House by the Wall

Other articles in this category