Water and Resilience
Lisbon’s waterscape is an active urban agent. This project interweaves natural and artificial hydric systems, harvesting rain, recharging aquifers, and redistributing flows. Resisting containment, it curates a metabolic exchange where city and water co-evolve in adaptive reciprocity.
How may we reimagine the role of water in contemporary cities, such as Lisbon? The Portuguese capital is not merely bordered by the Tagus, but entwined with it—an estuarine mesh that binds city to ocean, history to infrastructure. Water has long been carving its pathways here, sustaining life, and flowing through the intricate systems like the Aqueduto das Águas Livres. This project reconfigures Lisbon’s entanglement with its water networks at a moment of rupture—an era marked by climate-driven scarcity and relentless consumption, demanding a reimagining of this deep and shifting relationship.
"Water is not a passive element but an urban agent, shaping and being shaped by the architectures it inhabits. This project proposes a hybrid hydric system, where artificial and natural infrastructures are interwoven to create a resilient urban metabolism. Rainwater is harvested, infiltrated into aquifers, and later redistributed, ensuring a cyclical and adaptive relationship between water and city. Rather than treating excess as a hazard and scarcity as an inevitability, this system choreographs their balance, embedding water management into the lived experience of urban space.
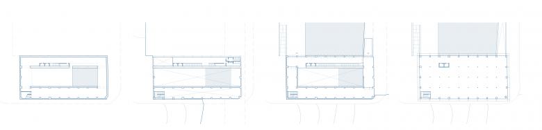
At the valley floor, retention reservoirs and urban gardens absorb stormwater, mitigating floods while generating cooling landscapes that foster and expand public life. These spaces, beyond their functional role, serve as mediators between climate adaptation and urban form. On the ridges, gravity-fed systems redistribute groundwater through site-specific interventions. From the constellation of plots identified for this effect, two were carried out as practical exercises: in the Portugália quarter, a multi-use cultural pavilion rises from a reconfigured office building, where
a retention basin regulates temperature, sustains vegetation, and shapes shaded communal spaces; in Penha de França, collective housing unfolds within an infrastructural wall, integrating water storage and distribution, shaping an adaptive and regenerative architecture that responds to climate imperatives.
This system resists rigid containment, scaling across basins and adapting to local conditions. It does not merely supply water but curates urban life, forging a reciprocal relationship where city and water evolve in a metabolic process of co-creation."
- 项目状态
- 设计



















