Umbau und Umnutzung eines Bürogebäudes
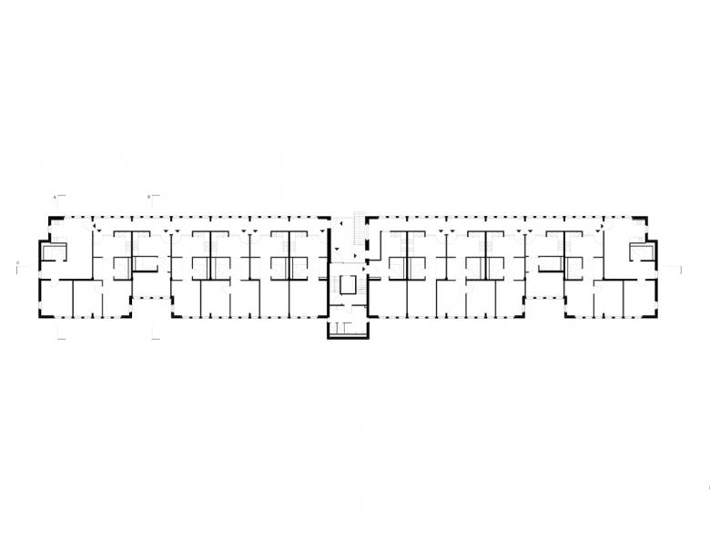
An der Kriegackerstrasse in Muttenz liegt eine bis anhin als Bürogebäude genutzte Liegenschaft aus dem Jahr 1983, eingebettet in ein gewerblich geprägtes Quartier mit aufgelockerter Blockrandbebauung und vereinzelten Wohnnutzungen. Das Gebäude mit drei Vollgeschossen und einer Einstellhalle gliedert sich in ein lineares Volumen, bestehend aus zwei nahezu identischen Baukörpern mit zentraler Erschliessung. Charakteristisch war die funktionale Erschliessung über Mittelgänge, entlang derer zellenartig organisierte Büroräume angeordnet waren.
Das Bestreben der Bauherrschaft lag in der Reduktion der bestehenden Büroflächen zugunsten einer ergänzenden Wohnnutzung. Im Zuge der Projektbearbeitung – in enger Zusammenarbeit mit Burckhardt Architekten als Generalplaner – wurde das Gebäude durch gezielte, präzise Eingriffe neu strukturiert. So konnte eine funktionale und räumliche Nutzungsschichtung von Wohnen in den beiden unteren sowie Büro in den darüberliegenden Geschossen innerhalb desselben Baukörpers ermöglicht werden. Die bestehende Raumstruktur wurde rückgebaut, die statische Aussteifung des Gebäudes durch entsprechende Massnahmen ergänzt, und die neue Raumorganisation durch neu eingezogene Innenwände definiert.
Künftig beherbergt das Erdgeschoss familiengerechte Wohnungen mit ebenerdiger Erschliessung, privaten Zugängen und hofseitig zugewiesenen Gartenflächen. Im darüberliegenden Geschoss erfolgt die Erschliessung der kompakten Studiowohnungen über einen neu integrierten, nordseitig angeordneten Korridor.
Im Gegensatz zur vorherigen kleinteiligen Raumstruktur sind die Büroflächen heute als offene, grosszügig nutzbare Open-Space-Bereiche konzipiert. Die beiden Bürogeschosse sind durch gezielt gesetzte Deckenausschnitte mit internen Treppen verbunden, die nicht nur der vertikalen Erschliessung, sondern auch der räumlichen Verzahnung und Sichtverbindung dienen. Zusätzlich integrierte Gauben und Dachterrassen führen Tageslicht in den Innenraum und werten die Aufenthaltsqualität im Bürobereich auf.
Die überarbeitete Fassadengestaltung stärkt die Präsenz im städtebaulichen Kontext und verleiht dem Gebäude eine zeitgemässe Aussenwirkung.
Im Rahmen der umfassenden Sanierung lag der Fokus auf einem sensiblen Umgang mit dem Bestand, um die Qualitäten der ursprünglichen Bausubstanz zu bewahren und gezielt in die neuen Nutzungskonzepte einzubinden.
- 年份
- 2025
- 项目状态
- 已建造
- 团队
- Superdraft Studio, Burckhardt Architekten
相关项目
杂志
-
每周建筑
The Three-Body Problem: Trapped in a Wave Sandwich
Eduard Kögel, Scenic Architecture Office | 13.04.2026 -
-

















