Umbau Casa Carolina
Soglio, 瑞士
Bei dem Projekt handelt es sich um die Renovierung eines Hauses in der Ortsmitte, wobei man sowohl die Ansprüche des modernen Wohnens wie das Bedürfnis nach Licht und privaten Räumen im Freien als auch die Beschaffenheit eines dicht bebauten historischen Ortskerns berücksichtigte.
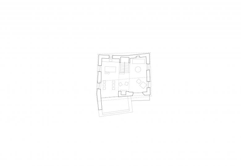
Das Projekt passt die Wohntypologie den heutigen Bewohnerbedürfnisse an und ordnet die Räume umgekehrt. Der Tagesbereich ist auf die letzte Etage gelegt, die Zimmer und das Bad auf die mittlere. Auf der Eingangsetage befindet sich jetzt ein Gästezimmer, ein Atelier und ein Bad.
Der Weg nach oben führt vom Eingangsbereich durch das Haus. Über die restaurierte Steintreppe erreicht man den weitläufigen Mittelgang an dessen Ende sich die zweite, die neue Treppe befindet, die zu den erweiterten Räumlichkeiten des Dachgeschosses und der Terrasse führt.
Das ursprüngliche Dach wurde erhalten, so wie die Aussenwände, die Decken und die tragenden Strukturen, stabilisiert durch präzis berechnete Eingriffe.
Die Naturstein-Fronten in Pietra Rasa wurden restauriert, die ursprünglichen Fenster mit ihrem typischen Aussehen erhalten. Die neuen weisen eine als modern erkennbare Form auf und werden mittels einer Einfassung aus glattem Beton hervorgehoben.
- 年份
- 2021
- 项目状态
- 已建造
- 客户
- privat
相关项目
杂志
-
-
-
Periphery as Method: On Architecture’s 'Dispositional Intelligence'
Guiomar Martín | 15.05.2026

























