Neubau Kellerei in Wilchingen
Wilchingen, 瑞士
Im Rahmen der Betriebsübergabe an die dritte Generation erhält das Gysel 175 Weingut einen neuen Fokus auf den Rebbau und damit ein umfangreiches Re-Branding. Um künftig in Eigenregie keltern zu können, wird die desolate «Getreide-Scheune» durch eine zeitgemässe Kelterei ersetzt. Durch die Auslagerung der Produktion in den Neubau wird eine Gliederung der Wertschöpfungskette in nachvollziehbare Bereiche und dennoch ein städtebaulicher Dialog zum bestehenden Weingut geschaffen. Der architektonische Ausdruck der ehemaligen Scheune wird im Volumen wie auch der vertikalen Holzschalung der Fassade aufgegriffen und zeitgemäss wiedergegeben.
Die angestrebte Zertifizierung des Neubaus als «Schaffhauser Haus» und mit dem Label «Schweizer Holz» fokussiert Nachhaltigkeit und Regionalität als gesamtheitliche Werte des Weinguts. Die baulichen Gesamtinvestitionen werden zu 60% in Wilchingen selbst und insgesamt zu 94% im Kanton Schaffhausen getätigt. Das für den Bau der Kellerei verwendete Holz stammt ebenfalls aus einem Umkreis von unter 5 Kilometern – einschliesslich der Waldwirtschaft, Holzernte und anschliessender Verarbeitung.
Somit kann nicht nur die regionale Wirtschaft und traditionelle Handwerkskunst gestärkt sowie der Nachwuchs lokal gefördert, sondern auch der CO2 Verbrauch konsequent minimiert werden. Unterstrichen wird die suffiziente Bauweise durch ein Lüftungskonzept, welches vollumfänglich auf natürlichen Luftaustausch mittels motorisierter Oblichter und durch die Nutzer bediente Fassadenöffnungen setzt. Temperiert wird mittels Fernenergie einer zentralen Schnitzelheizung.
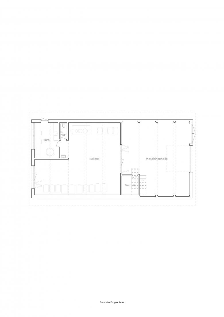
Die nördliche und von dem bestehenden Hauptgebäude präsente Giebelfassade der Kellerei dient vor allem der Repräsentation des Betriebes. Die in der Holzschalung verdeckten Öffnungen verschwinden in der Fassade und geben dem Gebäude sein flächiges Erscheinungsbild. Der nördliche Bereich des Erdgeschosses wird als Kellerei genutzt und umfasst Büro sowie eine Nasszelle, während im südlichen Teil die Maschinenhalle ihren Platz findet. Das gesamte Obergeschoss dient als Lagerfläche.
Ein Betonsockel schafft den Übergang zwischen Platz und Holzkonstruktion. Das Primärtragwerk
in Form der Balkenlage überspannt die kurzen Gebäudeseiten. Die Wahrnehmung der Tragstruktur und den einzelnen Holzelementen ist klar ablesbar und das Raster prägt den architektonischen
Ausdruck der Kellerei im Innen- und Aussenraum. Dimension, Dachneigung und das ausladende Vordach greifen die Parameter der alten Scheune auf und werden besonders in der Schnittfigur des Neubaus sichtbar. Durch die sorgfältige Materialwahl und das Zusammenspiel von Holz, Sichtbeton und metallischen Oberflächen erhält der Baukörper einen zeitgemässen und harmonischen Gesamtausdruck im Kontext des Wilchinger Dorfkerns.
- 年份
- 2024
- 项目状态
- 已建造
相关项目
杂志
-
每周建筑
The Three-Body Problem: Trapped in a Wave Sandwich
Eduard Kögel, Scenic Architecture Office | 13.04.2026 -
-





















