Modulare Schulraumerweiterung in Pieterlen
Pieterlen, 瑞士
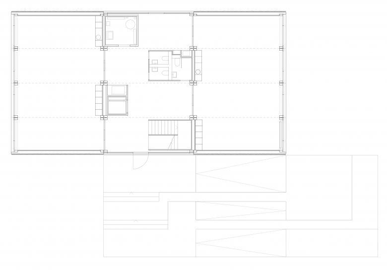
Für die Einwohnergemeinde Pieterlen planten und realisierten wir mit Verve eine Schulraumerweiterung in Holz-Modulbauweise. Eine Komposition von 3 x 4 Modulen pro Geschoss ergibt die je zwei gewünschten, grossen Klassenräume an Ost- und Westfassade, mit innenliegendem Erschliessungs- und Servicebereich.
Ausschlaggebend für die Wahl der modularen Konstruktion, war der Wunsch der Bauherrschaft, flexibler auf schwankende Schülerzahlen reagieren zu können. Bei Bedarf kann das Gebäude, bei einer Vorlaufzeit von rund sechs Monaten für Planung und Produktion, innerhalb der Sommerferien, um ein zusätzliches Geschoss aufgestockt werden.
Alle Module wurden im Werk des Holzbauunternehmers (Renggli AG) vorfabriziert; Leuchten, Heizkörper, Leitungen, etc. waren bereits integriert, als die Module innert 3 Tagen vor Ort platziert wurden. Die Module sind aufs Wesentliche reduziert und bestechen durch ihre einheitliche, durchdachte Konstruktion, Materialwahl und Haustechnik sowie das sehr gute Kosten- / Nutzenverhältnis.
Die Situation des Neubaus ist einerseits durch die starke Präsenz des Juramassivs, sowie andererseits durch die umgebenden Schulbauten geprägt. Beide Aspekte finden ihre Repräsentation in der Fassadengestaltung des Neubaus. Das mineralische Eternit der Nord- und Südfassade korreliert mit den Farben des Gebirges und des Waldes. Die farblich differenziert ausgestalteten Fensterfronten der Ost- und Westfassade stehen im Dialog mit den kunstvollen und farblich facettenreichen Klinkerelementen der bestehenden Schulbauten und der umgebenden Dachlandschaft. Die, aufgrund von Sicherheitsvorschriften, obligatorischen visuell-taktilen Markierungen auf den Stufen der Zugangsrampe wurden auf spielerische Weise umgesetzt. Medizinische Fachausdrücke auf Latein diverser Knochenbrüche und anderer Verrenkungen, markieren jeweils die Kanten.
Mit der Aufstockung der modularen Schulraumerweiterung Pieterlen um ein Geschoss, konnte nun erstmals die vielbeschworene Flexibilität des modularen Konzepts unter Beweis gestellt werden.
Bis zum letzten Tag vor den Sommerferien konnten die Schülerinnen und Schüler den Unterricht ohne Beeinträchtigung durch Bauarbeiten besuchen. Als sie am ersten Tag nach den Sommerferien, nach einer Bauzeit von 6 Wochen also, das Schulhaus wieder betraten, verfügte dieses über zwei zusätzliche Klassenzimmer im neuen 2 Obergeschoss.
Eine Erweiterung des Raumangebots um 50 %, ohne einen Tag des Betriebsunterbruchs.
- 年份
- 2019
- 项目状态
- 已建造
相关项目
杂志
-
-
-
Periphery as Method: On Architecture’s 'Dispositional Intelligence'
Guiomar Martín | 15.05.2026
















