Mehrfamilienhaus Hardstrasse
Neuenhof, 瑞士
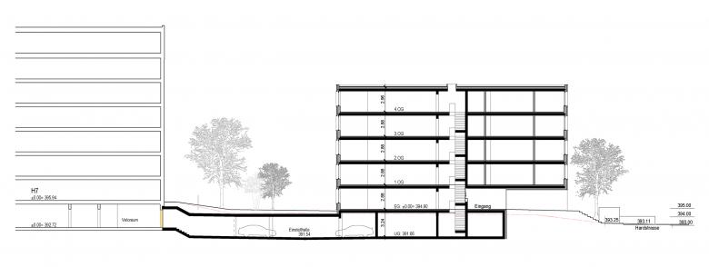
Das Mehrfamilienhaus an der Hardstrasse ergänzt auf der noch freien Fläche die beiden 2012 - 2018 erstellten Ersatzneubauten. Innerhalb des ortsbaulichen Gesamtkonzeptes wird der Neubau in die Siedlungsstruktur eingefügt. Der neue fünfgeschossige Baukörper übernimmt die Ausrichtung und Höhen der Nachbarbauten und unterscheidet sich bewusst von den beiden turmartigen Solitärbauten an der Kapellstrasse.
Der Neubau liegt in unmittelbarer Nähe zur S-Bahnstation Neuenhof und ergänzt mit 34 2 ½ und 3 ½ Zimmerwohnungen das Angebot der bestehenden Siedlung mit mehrheitlich Familienwohnungen.
Der kompakte, optimal gedämmte Baukörper ist im Minergie A Label geplant, die Wärmeerzeugung erfolgt über eine Grundwasserwärmepumpe und die Dachfläche wird mit einer Fotovoltaikanlage ausgestattet. In der neuen Einstellhalle zahlreiche Ladestationen für die e-Mobilität angeboten.
- 年份
- 2021
- 项目状态
- 正在施工
- 客户
- AXA Leben AG
- Landschaftsarchitekt
- SKK Landschaftsarchitekten AG
- Visualisierung
- Nightnurse Image AG
相关项目
杂志
-
-
每周建筑
The Three-Body Problem: Trapped in a Wave Sandwich
Eduard Kögel, Scenic Architecture Office | 13.04.2026 -










