Lehr- und Lerngebäude der RPTU Kaiserslautern
Pfaffenbergstraße 93, Kaiserslautern, 德国
Gelandet im Pfälzer Wald
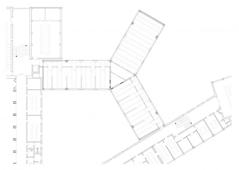
Auf dem Campus Pfaffenberg in Kaiserslautern, dort wo sich die Flügel der bestehenden Institutsbauten kreuzen, ist das neue Lehr- und Lerngebäude für die Fachbereiche Architektur / Raum- und Umweltplanung, »gelandet«. Mit seiner sternförmig Gestalt fügt es sich einfach in den Bestand ein und schiebt sich zwischen die vorhandenen Baukörper, als hätte es den perfekten Zwischenraum gefunden. Aus der Ferne wirkt es beinahe schwebend, ein ruhendes, gelandetes Ufo, das dennoch selbstverständlich mit dem Ort verbunden ist.
Die Lage zwischen den heterogenen Gebäuden des Campus und dem bewaldeten Hang prägt das Projekt maßgeblich. Statt sich einem der umgebenden Baukörper unterzuordnen, formuliert der Neubau eine eigene räumliche Identität. Seine ausgreifende Geometrie öffnet sich in mehrere Richtungen, vernetzt Wege und Räume und schafft neue Außenbereiche. Die präzise Form und das eindeutig verfolgte Konzept verleihen dem Gebäude Klarheit, Haltung und eine unverkennbare Präsenz.
Die Fassaden springen zurück, die Auskragungen erzeugen Schatten und Tiefe. Aus den Zwischenräumen entstehen halböffentliche Höfe, in die sich das Leben des Campus hinein verlängert. Die Lern- und Seminarräume, sowie die Erschliessungsflächen öffnen sich großzügig zu diesen Höfen und dem grünen Aussenraum. Im Gebäudeinneren bestimmen helle, robuste Oberflächen, präzise gesetzte Öffnungen und einheitlich gestaltete Lernbereiche die Atmosphäre. So entsteht trotz futuristischer Außenwirkung ein klarer, sehr ruhiger Lernort.
- 年份
- 2025
- 项目状态
- 已建造
- 客户
- Landesbetrieb Liegenschafts- und Baubetreuung Kaiserslautern
- 团队
- Tim Gork (verantwortlicher Partner), Bilal Epaydin (Projektleiter), Juliane Wolzenburg
- Tragwerksplanung
- f2k ingenieure gmbh
- Bauphysik
- IB Gutbrod
- Elektroplanung
- CONTEGA Ingenieure
- Brandschutz
- IBC Ingenieurbau-Consult GmbH
- LBB Kaiserslautern
- HLS Planung
- Bauleitung
- röcker gork architekten
相关项目
杂志
-
-
每周建筑
The Three-Body Problem: Trapped in a Wave Sandwich
Eduard Kögel, Scenic Architecture Office | 13.04.2026 -















