Franklin Village
Franklin-D.-Roosevelt-Straße 98-108, Mannheim, 德国
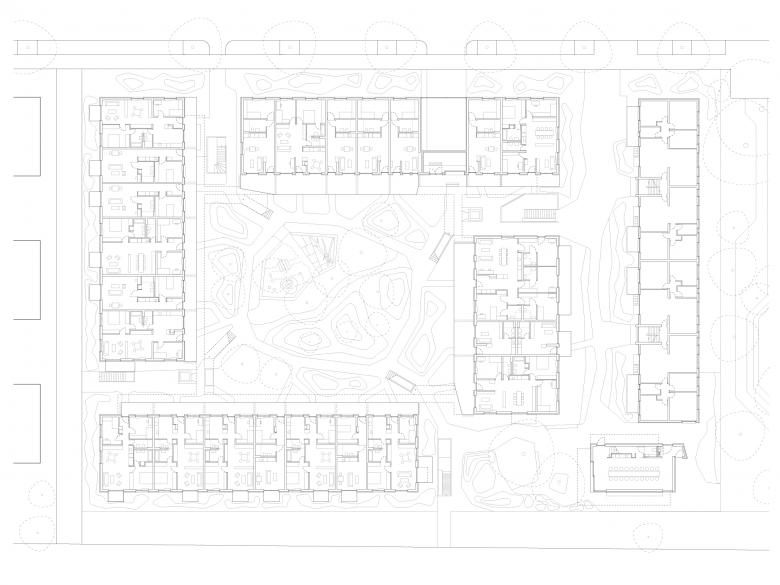
Dieses Projekt ist Bestandteil der Revitalisierung des in den 1950er Jahren entstandenen Benjamin Franklin Village im Nordosten Mannheims, eines der größten ehemaligen Wohngebiete der in Europa stationierten US-Streitkräfte. Eingebettet in eine weitläufige Parkanlage entsteht hier durch Konversion und Nachverdichtung ein Stadtteil für rund 10.000 Menschen, dessen Nutzungsvielfalt von Arbeits-, Betreuungs- und Ausbildungsstätten bis hin zu Kultur-, Freizeit- und Naherholungsmöglichkeiten reicht.
Der Entwurf folgt dem Grundgedanken einer umfassenden Zielgruppenvielfalt bei sozialer Durchmischung. Vier Neubauten mit diversen Wohntypologien, von Clusterwohnungen über klassisches Familienwohnen bis hin zum kleinen Apartment, gruppieren sich um einen gemeinsamen Innenhof. Ihre Erschließung erfolgt über stützenfreie und mit etwas Abstand vor der Außenwand angehängte Laubengänge, die auf breiten Terrassen eine Aneignung durch die Bewohner und spontane Begegnungen im Alltag ermöglichen. Die Farbgebung der Untersichten und Schotten akzentuiert diese besonderen Räume zusätzlich.
Solche gemeinschaftlich genutzten Flächen sind Herzstück und Katalysator einer Kultur solidarischen Zusammenlebens im Quartier. Das Quartiersforum bildet als „erweitertes Wohnzimmer“ mit Küche, Lounge, Coworking Space, Werkstätten und einer Dachterrasse einen Kristallisationspunkt für das Miteinander in der Nachbarschaft.
Die Neubauten sind in Holzrahmenkonstruktion mit Holz-Beton-Verbunddecken erstellt. Zusätzlich wurde ein Bestandsgebäude an der Nordostseite des Grundstücks saniert und durch eine zweigeschossige Aufstockung in Holzbauweise erweitert. Das Achsraster der Holzrahmenkonstruktion bildet eine konstruktive Grundlage, die auf einfache Weise eine hohe Grundrissvariabilität ermöglicht. Jeder Wohnungstyp wurde in zwei verschiedenen Größen angelegt, so dass Grundrisse mit Nord-Süd-Ausrichtung durch ihre geringere Tiefe das Tageslicht besser ausnutzen. Insgesamt wurde eine Vielfalt von Wohnungsgrößen wirtschaftlich umgesetzt, die mit den Flächenanforderungen unterschiedlicher Wohn- und Lebensbedürfnisse korrespondiert und Anpassungsmöglichkeiten für die Zukunft bietet.
- 年份
- 2023
- 项目状态
- 已建造
- 客户
- Innovatio Projektentwicklung GmbH / Profund GmbH
- 团队
- Louisa Hutton, Matthias Sauerbruch, Juan Lucas Young, Vera Hartmann, Jürgen Bartenschlag, Daniel Adler, Sibylle Bornefeld, Thomas Braun, Katja Correll, Christiane Delucchi, Anita Fabbiano, Larissa Götze, Philipp Hesse, Judith Larsen, Arthur Martinevski, Tanja Mähler













