Erweiterungsneubauten Kantonsschule Limmattal, Urdorf
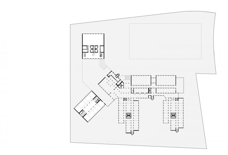
Die Grundorganisation der bestehenden Schulanlage wird mit neuer Aula, Turnhallen und Klassen erweitert. Die neuen Perlen an der Kette sind ähnlich in der Form und unterschiedlich in der Höhe: die Staffelung zur Strasse hin bildet volumetrisch den Abschluss und gleichzeitig aussenräumlich den Auftakt. Zwischen den beiden Doppelturnhallen befindet sich um 90° gedreht die Aula. Das gigantische Zwischengeschoss fungiert als riesiger Ober-/Unterzug und reduziert die statischen Höhen. Die Haptik der gefalteten Betonfaserelemente referenziert die Welleternitfassade der bestehenden Trakte. Einfache, robuste Konstruktionen und flexible Raumnutzungen dank Rippendecken charakterisieren die Neubauten.
- 建筑师
- PENZISBETTINI.
- 年份
- 2017
- 项目状态
- 已建造
- 客户
- Staat Zürich vertreten durch das Hochbauamt Kt. Zürich
- 团队
- Laterza Graf Baupartner, S2L Landschaftsarchitektur BSLA SIA, ingegneri pedrazzini guidotti sagl, Dr. Lüchinger + Meyer, ahochn, R+B Engineering, Bakus Bauphysik + Akustik

















