2226 JED Schlieren
Zürcherstrasse 39 d, Schlieren, 瑞士
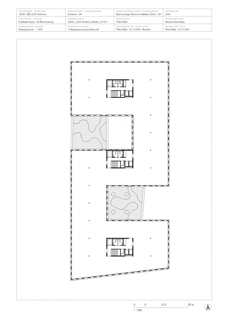
Der Name des Projekts ist sein Programm – 2226 JED Schlieren (Join. Explore. Dare) als Zentrum für Innovation und Wissenstransfer, das von unterschiedlichen Unternehmen bespielt wird, setzt ein Zeichen auch mit seiner Architektur in mehrfacher Hinsicht. Auf dem Gelände einer ehemaligen Druckerei definiert 2226 JED städtebaulich mit seinen Außenanlagen und der Volumetrie einen Ort neu, ohne den urbanen Maßstab der Umgebung aufzugeben.
Das Ensemble mit 18.000 Quadratmetern BGF zeigt sich als geschlossener Baukörper mit Einschnitten in den oberen Etagen, die Raum für begrünte Terrassen bieten. Im Parterre sind es die Rücksprünge der Kubatur, die geschützte Freibereiche entstehen lassen. Dem Raumfluss außen steht die maximale Nutzungsflexibilität im Inneren gegenüber. Lediglich Außenwände aus Ziegel, Säulenreihen und die Erschließungskerne bilden eine Primärkonstruktion, die als Rahmenwerk für nutzungsneutrale Arbeitsflächen dient.
In Sachen Kosten-, Energie- und Flächeneffizienz setzt 2226 JED neue Maßstäbe: Die Anlage ist bis dato das größte realisierte Projekt, das nach dem Prinzip 2226 errichtet wurde. Konkret bedeutet es, dass auf herkömmliche Methoden der Heizung, Kühlung und Lüftung verzichtet werden kann. Die Symbiose aus hoher Speichermasse (kompakte Bauform, Ziegelwände), Architektur (Proportionen, minimierte Fensterflächen, Raumhöhen) und dem 2226 Operating System. Diese Software, die mittels Lüftungsflügel die Energieströme lenkt, trägt dazu bei, dass übers Jahr hinweg das Temperaturspektrum zwischen 22 und 26 Grad Celsius eingehalten wird. Auf diese Weise wird ein Komfortklima bei hoher Luftqualität erzielt. 2226 JED zeigt heute schon wie die Zukunft des Bauens ohne fossile Brennstoffe bei einfacher Wiederverwertbarkeit der Gebäudekomponenten aussehen kann.
- 年份
- 2024
- Project Status
- 已建造
- 客户
- Swiss Prime Site Immobilien AG

















