Executive Masters of Business Administration (EMBA) Educational Facility
Media City, Dubai, United Arab Emirates
Positioned at the convergence of three prominent urban districts, Dubai Media City, Dubai Internet City, and Dubai Marina, the American University in Dubai campus occupies a uniquely strategic site. It is framed by Sheikh Zayed Road on one edge and the landscaped expanse of Dubai Media City Park on the other, situating the project within a dynamic metropolitan fabric. The building is located at the heart of the campus between the School of Engineering and the School of Business Administration. Its southern elevation opens onto a piazza-like space that functions as an outdoor forum for campus life, extending the social and cultural activities that unfold throughout the academic year.
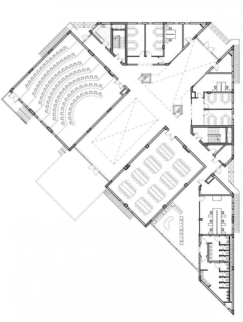
Rather than creating a monolithic structure, the design assembles five distinct volumes linked by transparent circulation and social spaces. This approach produces a balanced composition of mass and void, enclosure and openness. The learning spaces occupy more introverted volumes, while the atrium and hall maintain visual continuity with the campus landscape. The result is a spatial rhythm that moves between the concealed and the revealed.
Upon entering the building, visitors are aligned along a north-south axis defined by the elongated atrium that serves as the main heart of the project where all social, cultural, and educational activities occur. This spatial sequence culminates in an outdoor terrace that operates as a natural extension of the interior programs. Overlooking the piazza, the terrace reinforces the dialogue between inside and outside and can serve as a viewing platform, a stage for open-air events, or an adaptable outdoor complement to activities hosted within the building.
The ground floor houses two major learning environments: a stepped lecture hall and a flexible flat classroom, each capable of accommodating over one hundred students. Breakout rooms, administrative offices, and accessible circulation support a wide range of academic and community activities. The first floor includes the AUD Entrepreneurship and Innovation Center, adaptable workshop spaces, additional breakout rooms overlooking the main hall, and a large conference room for university and professional meetings. A triangular faculty lounge with floor-to-ceiling glazing opens toward the surrounding trees.
The architectural language is minimalistic, characterized by pure volumes, white surfaces, and expansive glass, creating a refined business ambiance aligned with the program’s identity. Throughout the design, the interplay between architecture and nature is carefully choreographed. The horizontal journey unfolds from campus to atrium to terrace, while the vertical experience is defined by double-height spaces illuminated from above. The positioning of the volumes provides shade and protection from Dubai’s climate, and the shifting shadows of the surrounding trees animate the façades and outdoor gathering areas.
This project embodies a thoughtful balance of function, atmosphere, and environmental sensitivity, offering a space where learning, community, and the natural surroundings converge.
- Arquitectos
- Georges Kachaamy Design
- Ano
- 2018
- Status do projeto
- Built
Projetos relacionados
Revista
-
A Construção da semana
Within Old Walls, a Breath of Fresh Air
Reichel Schlaier Architekten | 18.05.2026 -
Periphery as Method: On Architecture’s 'Dispositional Intelligence'
Guiomar Martín | 15.05.2026 -
-












