Computing and Data Science (CoDa), Stanford University
389 Jane Stanford Way, Stanford, CA, USA
Positioned at the crossroads of Lomita Mall and Jane Stanford Way near the center of the Stanford University campus, the new CoDa building sits adjacent to the historic main quad. The building’s central location symbolizes the university’s commitment to integrating data science into various academic disciplines, drawing from its proximity to the schools of Engineering, Humanities, and Sciences. Besides bridging disciplines, CoDa also unites old and new, stitching together the historic campus core with the adjacent arts, engineering, and medical precincts.
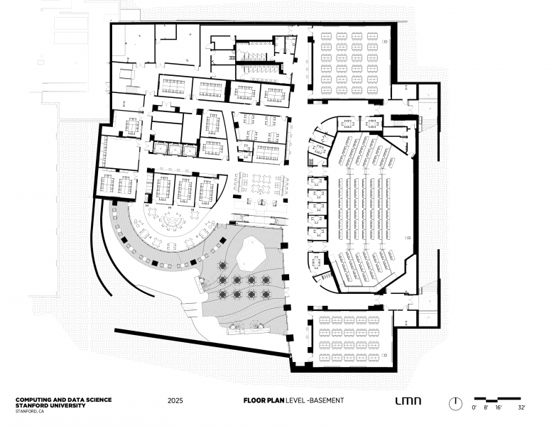
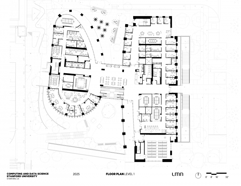
Supporting collaboration in multiple forms, the building’s spatial arrangement establishes a vibrant incubator for innovation. The complex includes classrooms, Faculty and Administrative offices, Student study spaces, a coffee bar, and a 200-person event space defined by an iconic oval ceiling element intended to host both public and university-wide events. Student-focused spaces on the lower levels and research-focused neighborhoods comprising of research offices on the upper floors converge at the Hive—a 5-story mixing chamber identified by the cross-directional feature stair. Animated by natural light and campus views through its transparent enclosure, the Hive offers flexible, open community and collaborative work areas surrounded by meeting and conference rooms, designed to encourage impromptu encounters, conversations, and exchange of ideas.
The building’s organizational concept encourages collaboration both horizontally and vertically, symbolized by the colorful central Hive stair. The stair’s perforated guardrail system is designed around 8-bit binary code, providing a textural background that animates the space and speaks to the shared research language of the computer sciences. Expressed in Stanford red, the Hive stair serves as a strong visual signifier, embodying the ethos of the building’s collaborative spirit.
Outside, the building complex engages the campus’ established architectural language while looking squarely to the future. The design incorporates vertical terracotta panels on the façade that nod to the historic natural building materials across campus, while also providing sunshading for offices and collaboration spaces within. Extensive daylight analysis and energy modeling informed the building’s massing and window-to-wall ratio, improving daylight availability while providing ample shading to reduce glare and energy loads.
Combining rectilinear and curved geometries, the building’s form engages with a series of surrounding outdoor spaces and plazas, establishing multiple entry points that help weave it into larger campus circulation routes. In both location and program, the building offers a new launchpad for applying data science and computation across disciplines, creating opportunities for collaboration to address today’s most urgent challenges.
- Arquitectos
- LMN Architects
- Ano
- 2025
- Status do projeto
- Built
- Cliente
- Stanford University
- Equipa
- John Aldredge, Xio Alvarez, Kjell Anderson, David Backs, Heather Bing, Hank Butitta, Dean Clark, Rob Curran, Michael Day, Steve DelFraino, Stephen DeMayo, Jennifer DuHamel, Nick Freese, Mette Greenshields, Phuoc Huynh, Sree Iyer, Rives Kitchell, Chuoc Lam, Vanessa Ly, Susan Lowance, Sam Miller, Mark Reddington, Chris Savage, Peter Song, Mark Tumiski, Emily Tupper, Masako Wada, Kate Westbrook, Christina Wilkinson, Alex Woodhouse, Sicheng Zhou
- Architect
- LMN Architects
- General Contractor
- The Whiting-Turner Contracting Company
- Structural Engineer
- Degenkolb Engineers
- Civil Engineer
- BKF Engineers
- Landscape Architect
- CMG Landscape Architecture
- Mechanical / Electrical / Plumbing
- Gayner Engineers
- Lighting Design
- HLB Lighting
- IT / AV / Security/ Acoustics
- NV5
- Environmental Graphics
- Clearstory Inc.
- Envelope Consultant
- Allana Buick & Bers Inc.
- Food Service Consultant
- JLR Design Group
- Code Consultant
- PCNA
- Energy Analysis and Environmental Design
- Atelier Ten
- Vertical Transportation
- Lerch Bates
- Door Hardware
- Adams Associates
Projetos relacionados
Revista
-
A Construção da semana
Within Old Walls, a Breath of Fresh Air
Reichel Schlaier Architekten | 18.05.2026 -
Periphery as Method: On Architecture’s 'Dispositional Intelligence'
Guiomar Martín | 15.05.2026 -
-








































