world-architects.com
Profiles of Selected Architects
Perfis
Projetos
Empregos
Eventos
Revista
Tópicos
Rede
Login
Inscrição
Português
Català
Deutsch
English
Español
Français
Italiano
Nederlands
Português
中文
日本語
Català
Deutsch
English
Español
Français
Italiano
Nederlands
Português
中文
日本語
World-Architects
Perfis
Arquitectos
Könz Architetto
Sobre
Projetos
Equipa
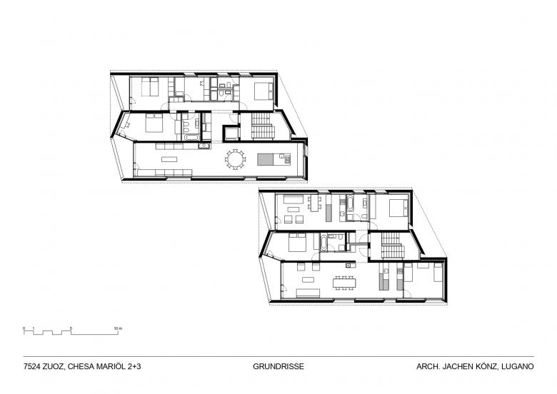
Chesa Mariöl 2 + 3
Mehrfamilienhäuser im Quartier Mariöl
Habitação colectiva
Ano
2013
Status do projeto
Built
Outros projetos por Könz Architetto
Piazza Darsena
Paradiso, Suíça
Casa Cotschna - Riattazione
S-Chanf, Suíça
Casa Camar
Lugano, Suíça
Posteggio Comunale
Guarda, Suíça
Nuovo Quartiere Cornaredo
Lugano, Suíça