The Belmonte Tomato Farmers Cooperative
Reinvigorating the agricultural production of a Calabrian regional speciality by founding a Farmer’s Cooperative. The proposed building will provide a home for the community and aims to inspire a subtle shift in mentality, to transform individual problems into collective regional solutions.
Belmonte has suffered a declining population due to unemployment, leaving 95% of its homes abandoned. Subsequent ‘revitalising’ EU led projects failed such as the derelict football pitch, reflecting an unnuanced understanding of the particularities of local needs. The remaining community, mostly elderly farmers, lead secluded lives with minimal agricultural collaboration. Financial hardship has led to individualism and economic distrust of neighbours whilst labour shortages and the rise of industrial farming have caused many farms to deteriorate, threatening traditional Calabrian culture.
The project’s approach was to gain an in-depth understanding through research while living in Belmonte for 3 months, building relationships with locals who revealed their tacit knowledge of farming methodologies, culture and social structures. Drawing from this regionally specific knowledge enabled me to form a sensitive brief responsive to local issues, avoiding externally imposed solutions.
Belmonte has a rich agricultural heritage once renowned for its unique variety of tomatoes. Inspired by the success of nearby towns Tropea or Diamante, which revitalised their economies by marketing regional specialities (onions and peppers), The Belmonte Tomato Farmers’ Cooperative (BTFC) aims to unite farmers through shared resources of knowledge, machinery, labour, seed banks, and marketing strategies. By refining the production process from cultivation to export; the cooperative aspires to improve yields, create jobs, attract residents, and place Belmonte back on the tourist map.
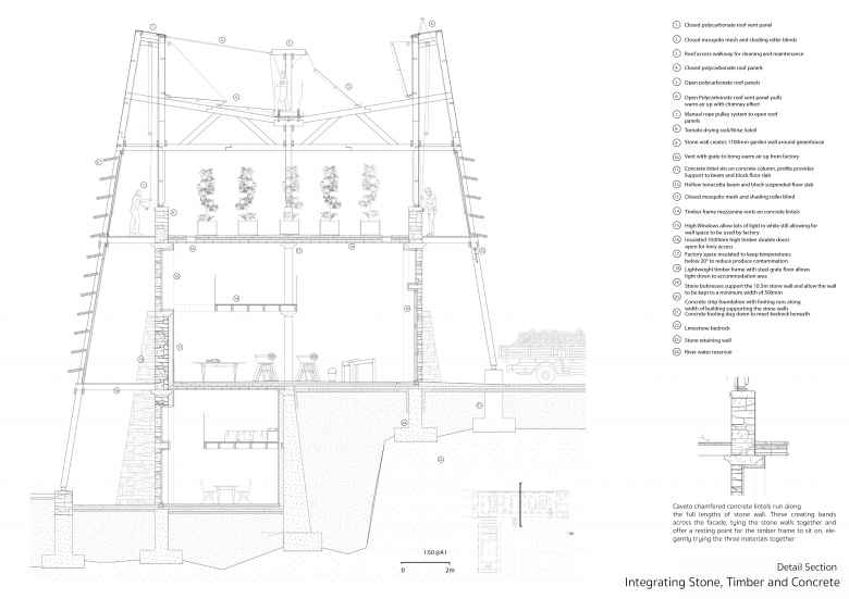
The BTFC building’s functions respond to the most pertinent community issues raised: a greenhouse to extend the growing season, a factory encased in sun drying racks to process produce from surrounding farms into profitable products, a water management strategy to address climatic challenges, accommodation to attract workers and a revitalised sports and social facility to bring the community together. The site choice, a disused football pitch, provides a flat foundation in a challenging topography, reducing costs and environmental impact. A key principle was to respect people’s cultural identities by facilitating and enhancing what already works. Focussing the approach on a product that locals already feel pride in and using local construction methodologies creates a sustainable energy for change.
- Status do projeto
- Design















