PLOT 183
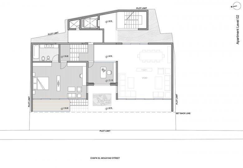
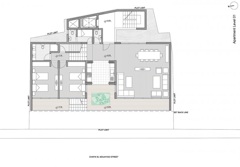
Plot # 183 is situated in a residential area of Northeast Beirut, with its main façade running along Chafik El Mouayiad Street. The residential project is located on a plot surface of 247 square meters, with an allowable built-up area of approximately 1420 square meters (gross).
This scheme is part of a series of projects we have developed that seek shallow floor slabs as an attempt to move away from the often imposed typical developer’s typology, which consists of deep slabs within a plan oriented around a blind and obscure central circulation core. Our intervention therefore embraces the street by stretching along its length, gaining generous natural light due to the resulting reduced depth of the floor plate.
The proposed scheme therefore positions the vertical circulation core at the back of the building along the eastern wall, clearing the 18-meter length of the front façade for maximum natural light to be gained by both the living rooms as well as the two-floor bedrooms, which are organized and alternate as split-section circuits.
An external promenade is created along this main glazed façade in the form of longitudinal terraces bordering the length of the plan at each level, allowing for one to make their way from any room in the house to another solely from the exterior. This outdoor circuit gives rise to an alternative exterior promenade and a seemingly suspended olive tree at each level, allowing the building and user to inscribe themselves into their surroundings by embracing the street and blurring the boundary between the interior and exterior, the private and the public.
- Ano
- 2009
- Status do projeto
- Built




