Renovation Reiheneinfamilienhaus in Bern
Bern, Zwitserland
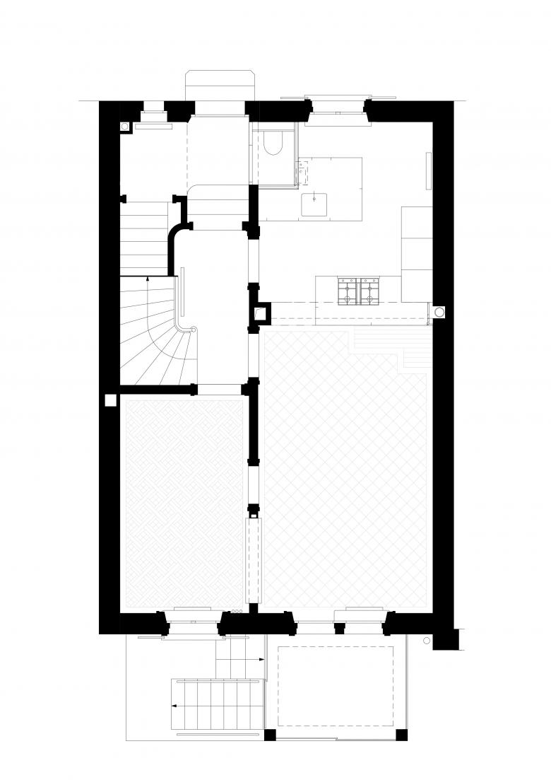
Das 1892 von Friedrich Marbach, ein wichtiger Vertreter des Berner Heimatstils, erbaute Reihenhaus im Breitenrainquartier wurde im Jahr 2015 im Gebäudeinnern komplett saniert. Eine intensive Phase des Rückbaus fand statt, die ursprünglichen Raumproportionen und Materialien kommen wieder zum Vorschein. Die Farbgestaltung basiert auf der Fassung der 30er-Jahre. Die Küche und die Bäder wurden neu gestaltet. In einer zweiten Bauetappe wurden die Fassaden vom Kunststoffputz befreit und das Haus wurde durch einen diffusionsoffenen Materialaufbau in Kalk wieder zum atmen gebracht. Die Farbgebung der Fassade und der Steineinfassungen entspricht heute wieder dem Originalzustand.
- Architecten
- VERVE Architekten GmbH SIA SWB
- Jaar
- 2016
- Projectstatus
- Built
Gerelateerde projecten
Magazine
-
-
Bouwwerk van de week
The Three-Body Problem: Trapped in a Wave Sandwich
Eduard Kögel, Scenic Architecture Office | 13.04.2026 -













