House by the Wall
11, Changnyong-daero 80beon-gil, Paldal-gu, Suwon, Zuid Korea
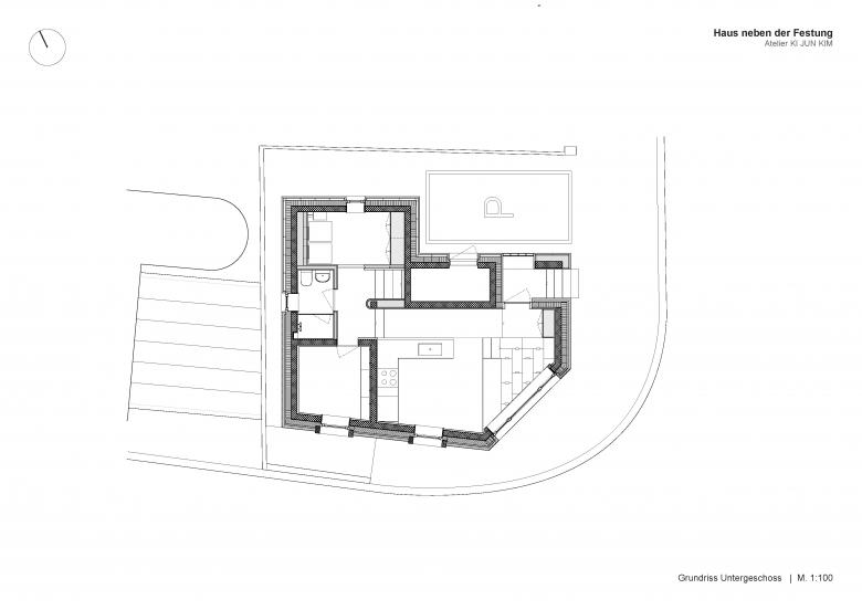
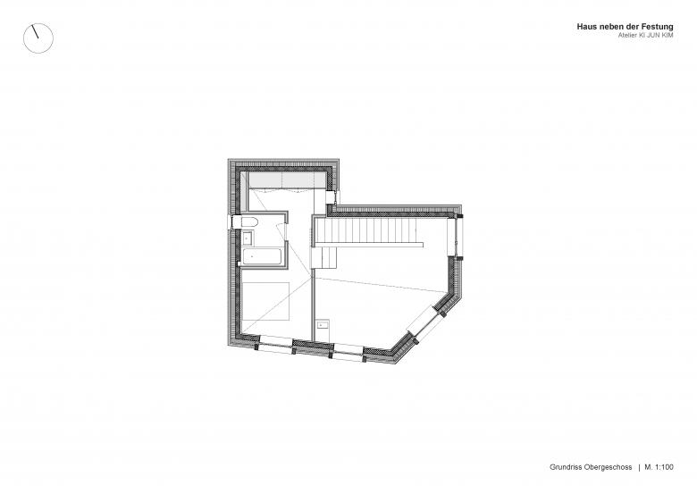
Situated within Suwon Hwaseong Fortress, a UNESCO World Heritage site once depicted as a residential quarter in the Joseon-era Hwaseong Haenghwado, this single-family house occupies a deeply contextual site. Positioned at a three-way intersection, it orients itself toward Dongilporu and the western ramparts while extending its gaze to the distant silhouette of Paldal Mountain, establishing itself as a quiet landmark woven into its surroundings. Unlike the regulation-driven maximization of floor area that the 2016 Venice Biennale Korean Pavilion critiqued in Floor Area Ratio Game, the clients sought liberation from such pressures, prioritizing spatial generosity for two over the full exploitation of buildable volume. The site lies within the Historic and Cultural Aesthetic District designated in the 2020 Suwon Hwaseong district unit plan, and the design embraces this regulatory identity with the ambition of becoming a reference building for the neighborhood. The three faces visible from the southern corner and the two faces encountered along the rampart promenade are treated as equivalent façades rather than arranged in hierarchy. Rather than resorting to anthropomorphic bilateral symmetry, the composition pursues the symmetry Vitruvius described in The Architectural Treatise as the harmony arising from the interrelation of parts derived from the building's own proportions. The exterior reconstructs the material logic of the fortress itself: a stylobate of sandstone-based inorganic natural mortar supports a body of white and blue-gray bricks laid in roughly a 3:1 ratio, capped by a dark gray tiled roof, with thinly applied mortar preserving the tactile grain of the masonry. Openings punctuate the transition between stylobate and body, and square view windows framed in protruding ultra-high-strength concrete—inspired by the gun holes of the nearby fortress—frame selected vistas while shielding the interior from outside view. The house is conceived to weather and age alongside Hwaseong, gradually settling into the landscape. Internally, the clients' dual need for focused work and unhurried rest, combined with the demand for privacy at such a prominent corner, led to a spatial structure informed by Adolf Loos's Raumplan, in which every living area is assigned its own floor level and ceiling height calibrated to its function. An organic sequence of stairs, likened to a spine, establishes an internal hierarchy among these rooms, and its direction is aligned with the outdoor stairs of Changryong-daero and the ramparts promenade so that the interior choreography converses with the city beyond. The house adopts a mezzanine section to lift the lower spaces for privacy; upon entering, one meets the Wintergarten, an indoor garden whose generous windows sustain potted plants through the cold months, set beside a kitchen raised roughly fifty centimeters above the conventional floor level. Passing the studio and climbing the longest flight of stairs, one arrives at an irregularly shaped living room where carefully placed openings on three sides frame both intimate and panoramic views of Hwaseong and admit sunlight throughout the day, while three further steps lead to the bedroom, which looks out toward Seojangdae, Paldal Mountain, and the Maitreya Buddha statue of Daeseungwon.
- Architecten
- Atelier KI JUN KIM
- Jaar
- 2023
- Projectstatus
- Built
- Klant
- Hyungkeun Chang
- Team
- Ki Jun Kim, Sangmin Kim
Gerelateerde projecten
Magazine
-
-
-
Bouwwerk van de week
Within Old Walls, a Breath of Fresh Air
Reichel Schlaier Architekten | 18.05.2026






























