Erweiterung Schulanlage Rietlen
Erweiterung Schulanlage Rietlen, Niederglatt
in Zusammenarbeit mit Haag Landschaftsarchitekten und Makiol Wiederkehr, Holzbauingenieure, Maaars Visualisierungen
1. Preis, offener Projektwettbewerb 2023
Die bestehende Anlage setzt sich zusammen aus Schulhäusern unterschiedlicher Zeiten, deren Zugänge sich auf sich auf unterschiedlichen Niveaus befinden. Die Gebäude unterscheiden sich in Erscheinung, Struktur und Erschliessung. Gemeinsam ist ihnen die volumetrische Differenzierung in Haupt- und Nebenvolumen.
Der neue Schulbau befindet sich an der Stelle der bestehenden Provisorien, der Eingriff in die Umgebung bleibt minimal. Der Grüngürtel im Süden mit der Spielwiese und den grossen Bäumen bleibt erhalten und bildet einen Abstand zu den neuen Wohnsiedlungen im Südwesten. Die Schulanlage als eigenständiges Areal wird dadurch gestärkt.
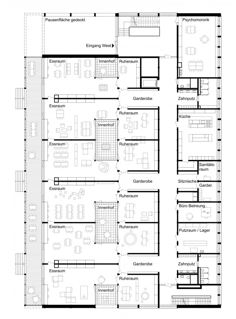
Die drei Betriebseinheiten sind in einem Gebäude zusammengefasst. Es nutzt den bestehenden Terrainverlauf, um betriebsspezifische Eingänge zu ermöglichen, Aussenräume zu differenzieren und den Betriebseinheiten zuzuordnen. Die unterschiedlichen Aussenraumnutzungen werden selbstverständlich verortet und Lärmkonflikte zwischen Tagesstruktur, Unterricht und den Sportaktivitäten werden vermieden:
Auf dem untersten Niveau auf Höhe der Schulstrasse befinden sich die Sportplätze, und der unabhängige Eingang in die Turnhalle. Der Aussenraum der Tagestruktur befindet sich auf der Höhe zwischen Schul- und Rietlistrasse mit direktem Eingang in die Ess- und Aufenthaltsräume der Tagesstruktur. Die Primarschule kann über beide Niveaus erreicht werden, der zugehörige Pausenplatz verbindet die Niveaus im Aussenraum. Die Lage der Hauseingänge ermöglicht eine schnelle Verbindung innerhalb des Areals.
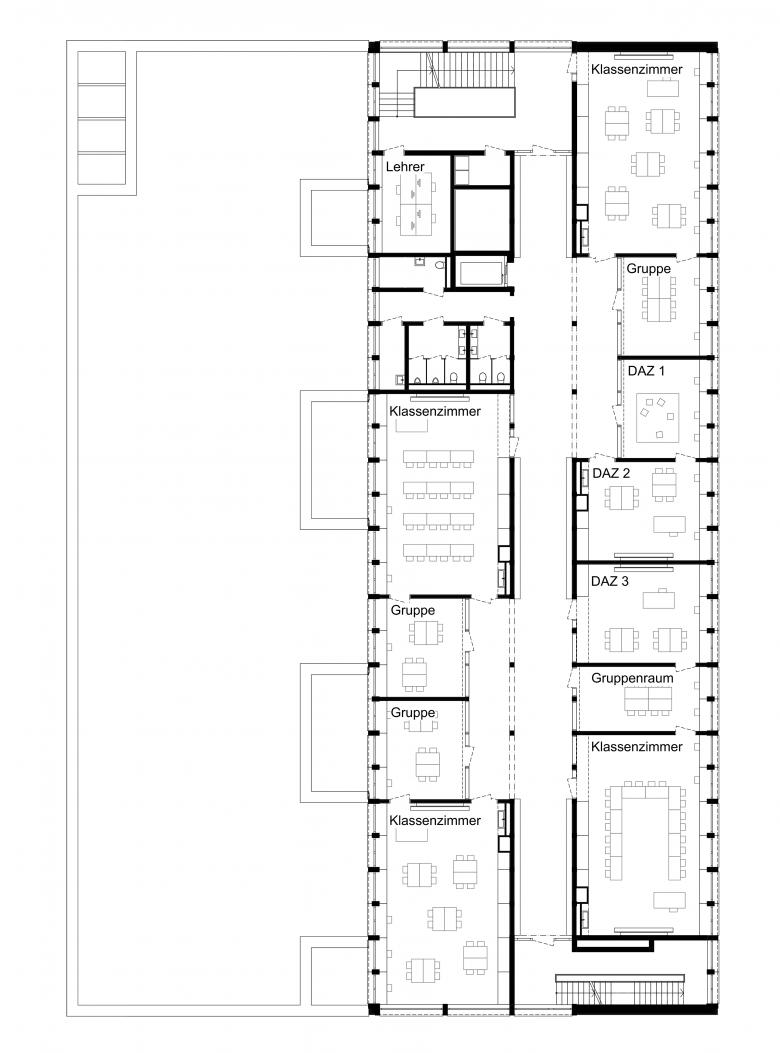
Das neue Schulhaus ist, wie der Bestand, gegliedert in höhere und tiefere Gebäudeteile, in Haupt- und Nebenvolumen. Der tiefere, eingeschossige Gebäudeteil orientiert sich gegen Südwesten zur kleinteiligen Anlage im Zusammenspiel mit den Häusern Rietli 1 und der Turnhalle mit seinen Anbauten. Zusammen bilden sie eine hofartige und intime Situation für den Aussenraum der Tagesstruktur. Durch die Höhenstaffelung und dem Rücksprung des Neubaus sind die Unterrichtsräume ein Geschoss darüber gut geschützt vor dem Lärm, auch die bestehenden Unterrichtsräume werden dank der Lage der Aussenräume nicht gestört. Der höhere, dreigeschossige Gebäudeteil befindet sich an der Schulhausstrasse und bildet den Abschluss des Areals.
Der Freiraum der bestehenden Schulanlage Rietlen ist in zwei Ebenen gegliedert. Die bergseitige Pausenplatzebene, die von den Schulhäusern Rietlen 1, 2 und 3 gefasst wird und an die Rietlenstrasse anschliesst, sind räumlich und topographisch vom talseitigen Bereich der Sportflächen getrennt. Der Neubau erweitert die Schulanlage Rietlen zu einer topografisch, kaskadenartigen Campusanlage, sodass ein geschützter Hofraum auf einer Zwischenebene entsteht, der zwischen den bestehenden Niveaus vermitteln kann. Auch das Schulgebäude Rietlen 4 wird mit dieser Setzung in dieses Beziehungsgeflecht miteingebunden.
Angeregt durch die Architektur der Bestandsbauten aus der Nachkriegsmoderne mit Hauptvolumen und pavillonartigen Anexbauten soll die Bepflanzung dem Hof eine landschaftliche Atmosphäre verleihen und fliessende Übergänge zu den angrenzenden Aussenräumen erzeugen. Die strukturreiche und robuste Vegetation aus einheimischen Kraut- und Straucharten und hochwachsenden Solitärbäumen bietet den Schülern eine naturnahen Umgebung, dass deren Reize beruhigt und ihre Sinne anregt. Um den klimatischen Veränderungen entgegen zu wirken, soll der riesige, bestehende Pausenplatz ein Baumkronendach erhalten, welches schattige Auffenthaltsmöglichkeiten bietet und ein Teil, als erste Massnahme bereits mit dem Schulprovisorium angelegt werden kann.
Der Neubau sucht im Ausdruck die Verwandtschaft zu den bestehenden Schulhäusern mit dem Ziel, die Schule als Gesamtanlage zu lesen.
Das einfache Fassadenprinzip mit rechteckigem Raster und flächiger Füllung vermag auf die unterschiedlichen Situationen zu reagieren, ohne dabei den Zusammenhalt zu verlieren: Die unterschiedlichen Geschossigkeiten, der Verandaabschluss, die geschlossenen Fassadenbereich und die Eingänge lassen sich selbstverständlich integrieren. Die Unterscheidung des Rasters und der Füllung erfolgt einerseits tektonisch und anderseits über die unterschiedliche Behandlung des Materials. Das Raster besteht aus gehobeltem Holz und die Füllung aus einer sägerohen, flächigen Schalung.
Die Fassade ist in seiner Farbigkeit zurückhaltend und orientiert sich am Bestand. Einzelne farbige Akzente stellen den Bezug her zu den Klinkerfüllungen des Bestandes und zum Klinkerkamin.
Die Betonung jeder zweiten Fassadenstütze an den Längsfassaden erzeugt eine lesbare Massstäblichkeit und lässt das Schulhaus als öffentliches Gebäude in Erscheinung treten.
- Jaar
- 2023
- Projectstatus
- Design







