Sanierung Mehrfamilienhaus
Kyburgstrasse, Bern, Switzerland
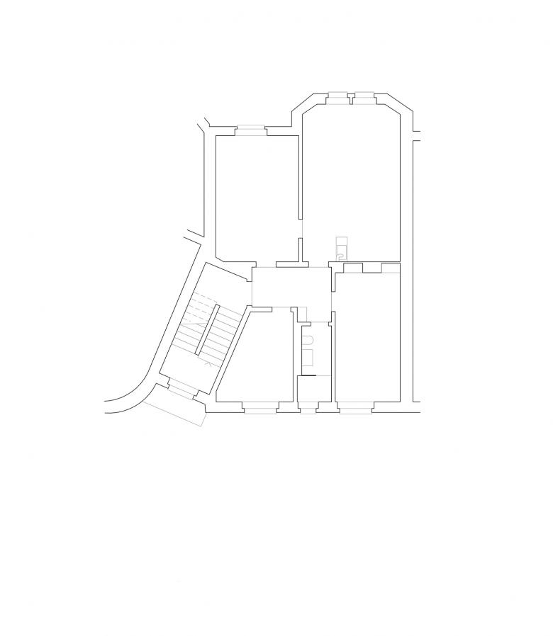
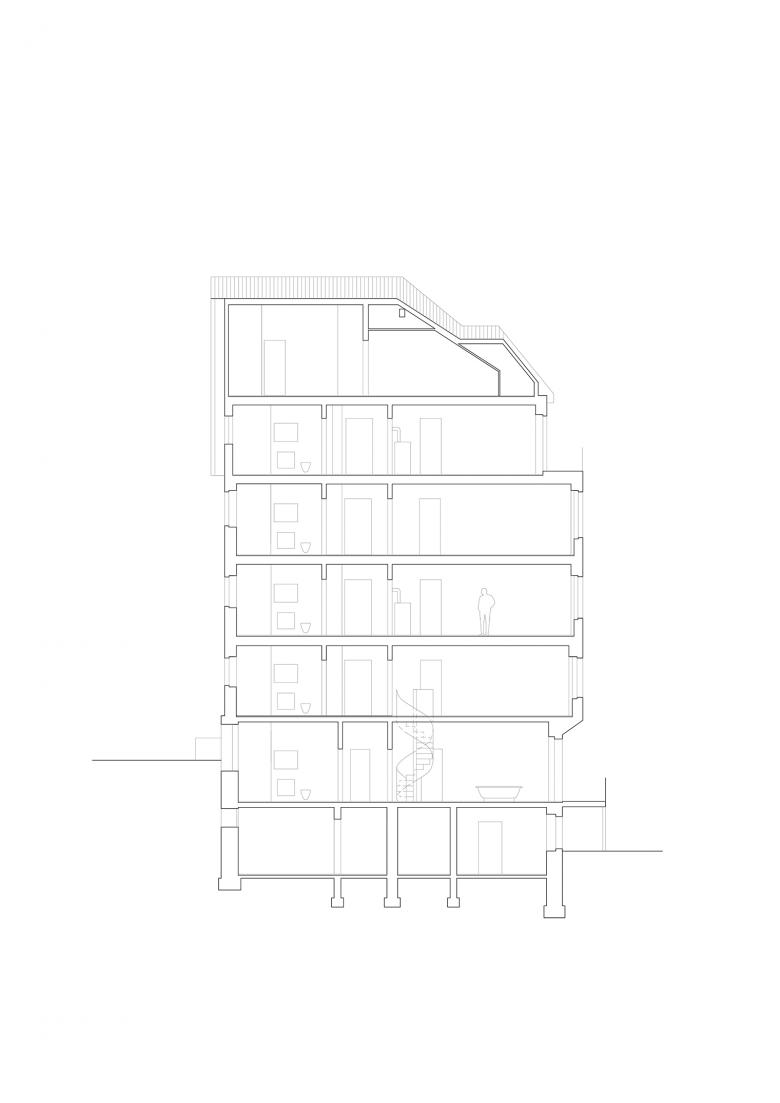
Der Auftraggeber beabsichtigte nach dem Kauf der Liegenschaft, die fünf bestehenden Mietwohnungen in Eigentumswohnungen (Stockwerkeigentum) umzuwandeln und eine Innensanierung der Liegenschaft durchzuführen. Hauptbestandteil der Sanierungsarbeiten bildeten dabei die Erneuerung der haustechnischen Installationen und Anlagen sowie der Ersatz der Wärmeverteilung mit Radiatoren. Historische Elemente (v.a. Treppenhaus, Fassade, Raumaufteilung) wurden beibehalten, respektive wo notwendig instand gestellt.
Aufgrund des Alters, des Zustandes und der Einbausituation der bestehenden Erschliessungsleitungen wurden diese neu erstellt. In diesem Zusammenhang sind auch die betroffenen Küchen, Bäder sowie die Korridore saniert worden. Die Sanierungsarbeiten im gemeinschaftlichen Bereich der Liegenschaft umfassten nebst Brandschutzmassnahmen (Brandabschnittsbildung, Rauch- und Wärmeabzug im Treppenhaus) auch Vorbereitungsarbeiten für den späteren Ausbau von Unter- und Dachgeschoss.
Durch eine enge Zusammenarbeit mit der städtischen Denkmalpflege wurde auch der denkmalpflegerischen Einstufung als ‚erhaltenswertes Objekt‘ Rechnung getragen.
- Architects
- Ernst Gerber Architekten + Planer AG
- Year
- 2017
- Project Status
- Built














