Neubau Gemeindehaus Stettlen
Stettlen, Switzerland
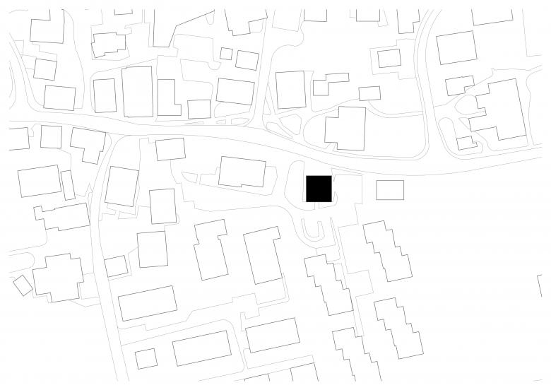
Die Herausforderung beim Entwurf bestand darin, das Programm für eine eher kleine Vorortsgemeinde von Bern in eine Form zu bringen, die den Ansprüchen eines Gemeindehauses in der heterogen gewachsenen Umgebung gerecht wird. Weiter mussten formelle Antworten auf die Anforderungen an die Nutzbarkeit sowie die Wirkung des öffentlichen Gebäudes gefunden werden. Das Projekt sucht mit seiner integralen Setzung und in seiner Präsenz eine selbstbewusste Stellung im Dorfbild – trotz der eher kleinen Volumenerscheinung.
Das Gebäude ist auf einem quadratischen Grundriss aufgebaut und liegt axial in der Längsachse des alten Feuerwehrmagazins im westlichen Bereich des Perimeters. Mit der Kreuzfirst-Dachform werden die Firstrichtungen der umliegenden Gebäude sowohl längs wie auch quer zum Hang aufgenommen und ermöglichen das Dachgeschoss allseitig natürlich zu belichten, ohne die reine Dachform mit Aufbauten zu verklären. Als «gekrönter Würfel» dokumentiert das Gebäude identitätsstiftend die Sondernutzung des Gemeindehauses und strahlt in alle Richtungen gleichwertig aus.
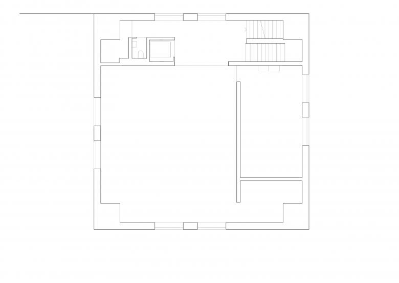
Die Nutzungen mit drei Abteilungen und verschiedenen Öffentlichkeitsgraden konnten wir dank dem kompakten Gebäude so anordnen, dass trotz der Mehrgeschossigkeit eine einfache Orientierung und kurze Arbeitswege möglich sind. Durch die zentrale Schalterhalle welche sich wie ein Atrium über zwei Geschosse entwickelt, ist der direkte Sichtbezug unter den einzelnen Abteilungen der Gemeindeverwaltung möglich.
Der Neubau erfolgt im MINERGIE-P Standard und unter der Berücksichtigung von ökologischen Grundsätzen im Bauprozess und einer nachhaltigen Konstruktions- und Materialwahl.
- Architects
- Ernst Gerber Architekten + Planer AG
- Year
- 2016
- Project Status
- Built
- Client
- Einwohnergemeinde Stettlen
Related Projects
Magazine
-
-
Building of the Week
The Three-Body Problem: Trapped in a Wave Sandwich
Eduard Kögel, Scenic Architecture Office | 13.04.2026 -














