Dignity In Shelter (DIS)
Our Dignity in Shelter (DIS) scheme is designed to integrate with our extensively tested Mobile Dry Diversion Toilet (MDDT) sanitation system.
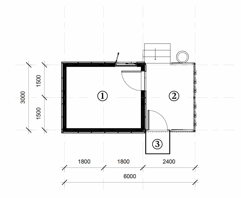
DIS offers a quick, scalable, and flexible housing solution for vulnerable population—particularly women—following forced evictions, within existing slums, and on IDP sites. The structures are temporary and reusable yet durable enough to provide stable shelter for many years.
Our approach targets “waiting lands”: parcels awaiting development that are often exploited by informal actors such as Omo’niles. Through proper agreements with government authorities, these lands can provide dignified housing for the most vulnerable, breaking cycles of poverty and gender-based violence while offering residents time to rebuild stability. When planned urban development begins, residents and their modular homes can be seamlessly relocated.
Technical Specifications:
· Lightweight construction suitable for unstable and soft terrain
· Housing unit: approximately $2,000
· Attached dry household toilet: approximately $250
· Flexible configuration options: duplex, cluster, or full urban scheme arrangements
- 建築家
- FABULOUS URBAN
- 年
- 2026
- プロジェクトステータス
- デザイン案
- チーム
- Fabienne Hoelzel, Simisola Fabusuyi, Chienye Ndudim, Aro Ismaila
- Project partner
- Heinrich Böll Stiftung Abuja
- Structural engineers
- Schlaich Bergermann Partner Stuttgart/Berlin
関連したプロジェクト
Magazine
-
-
Periphery as Method: On Architecture’s 'Dispositional Intelligence'
Guiomar Martín | 15.05.2026 -












