Casa Cotschna - Riattazione
S-Chanf, スイス
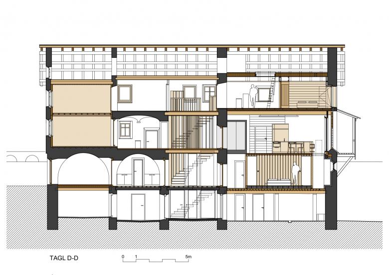
Eine neue, raumbildende Treppe: Renovation eines alten Engadinerhauses
Bei der „Chesa Cotschna“ handelt es sich um ein altes Engadinerhaus, bestehend aus einem bescheidenen Wohnteil mit gestrickter Wohnstube und einem Zimmer, ursprünglich ein mittelaterlicher Wohnturm, einem Mittelbereich, und der Scheune. Im Jahre 1927 wurde das Haus während eines Umbaues „italianisiert“.
Die Renovation fügt eine neue Treppe in den Mittelbereich: die neue vertikale Erschliessung wird zum zentralen Element des Hauses. Die Treppe wird zusammen mit dem Podest als Arbeitstisch als Möbel in einer doppelten Höhe gestaltet. Ein neues Panoramafenster unterstützt diese Idee, als einzige Ausnahme in der einheitlichen Fassade.
- 建築家
- Könz Architetto
- 年
- 2021
- プロジェクトステータス
- 竣工済
関連したプロジェクト
Magazine
-
-
Periphery as Method: On Architecture’s 'Dispositional Intelligence'
Guiomar Martín | 15.05.2026 -
-










