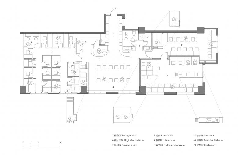
壹心空间自习室
江苏南京新街口, China
南京市新街口的写字楼高空中,悬浮着一座与城市对话的精神容器。当推开玻璃门的瞬间,城市轰鸣即刻被抽离,眼前展开的是一片由桦木、织物与光编织的有机系统。多么工作室以建筑学视角重构当代都市人的学习空间,在百米高空演绎空间叙事与身体感知的协奏曲.
一盏悬浮的灯笼意向装置仿佛空间的精神图腾,安静的盘旋在空中。桦木多层板经数字化设计,构建出精细的榫卯细部,其木质骨骼隐于布料之后,若隐若现,当光线穿透时有了呼吸的节奏。白天,日光温柔地穿过布料与木骨架的间隙,在书桌上投射出层次丰富的光影,灵动而诗意。夜晚,温暖的灯光透过半透纱幔,在顶部晕染出一片柔和的微光,仿佛漂浮的梦境。这个悬浮的发光装置不仅是功能性的照明系统,更是空间的精神象征,其投影随着太阳角度在12小时内完成从实到虚的形态渐变。
在竖向设计上,我们设计了具有趣味性的攀爬路径,选择空间里顶部障碍物较少的区域置入叠加功能区,在自习区里穿插了多个立体盒子,增大了使用面积的同时,也增添了有趣的空间体验。沿着爬梯向上,便抵达精神性空间 —— 冥想小屋。这个舱体空间兼具躺卧与静坐功能,尽端的透明消隐式桌子,让使用者在百米高空俯瞰城市脉络,在此体验一览众山小的意境。
从节省成本和保证层高的角度出发,我们仅在空调及新风管道区域设置了局部吊顶,并将大多数隐蔽工程集中整合于这些吊顶内部,从而确保其余顶面干净利落的裸露效果。这些木饰面吊顶体块通过空间构图上精心的推敲,与室内各要素建立起新的视觉关系。其与原始顶棚的巧妙脱开处理,更在视觉上营造出轻盈的悬浮感。
条件的限制,往往能催生最动人的设计。为弱化空中水平消防喷淋管的存在感,我们为其量身设计了一款木质灯具,这些灯具以阵列形式寄生在水管之上,将原本突兀的管道转化为串联木质灯具的结构杆件,让功能本身成为美学的一部分。考虑到高分贝区的12人长桌需要桌面照明,我们在桌子中心设计了一根方形立柱,这根立柱既满足地面走线需求,又为悬臂灯槽创造出受力条件。悬臂上我们设计了可拆卸的屏风机关,每一侧的悬臂中心都设计了一道缝隙,用于悬挂屏风,与对面的座位实现了视线的开合切换可能性。
空间不仅是功能的容器,更是情感的放大器。项目最动人的部分在于其建造过程,布料与木框架的固定方式最终由业主一家人亲手完成。这种”参与式建造”让非标准节点超越了机械化的冰冷,成为承载记忆的载体。随着时间推移,织物逐渐沾染使用者的痕迹,空间从被设计的对象蜕变为有生命的物体。
- Architetti
- Atelier d'More 多么工作室
- Anno
- 2025
- Stato del progetto
- Costruito
Progetti collegati
Rivista
-
-
La Costruzione della settimana
Within Old Walls, a Breath of Fresh Air
Reichel Schlaier Architekten | 18.05.2026 -
Periphery as Method: On Architecture’s 'Dispositional Intelligence'
Guiomar Martín | 15.05.2026































