Marktraum am Naschmarkt
Der neue Marktraum ist ein offener, wandelbarer Holzbau von Mostlikely Architecture. Er verbindet Markt, Stadt und Menschen und gibt dem historischen Naschmarkt ein neues Zentrum.
Mit seiner grün lasierten Fassade und den warmen Holzoberflächen führt die Architektur die
Sprache des Naschmarkts fort – als Raum für Handel, Begegnung und Alltag, in dem Lebensqualität und Lebensmittelqualität zusammenfinden und Wiens Marktkultur in die Zukunft getragen wird.
Mit dem neuen Marktraum erhält der Naschmarkt ein Zentrum, das weit mehr ist als eine Markthalle – ein offener, wandelbarer Ort, in dem Handel, Alltag und Gemeinschaft ineinandergreifen.
Entworfen von Mostlikely Architecture um Mark Neuner, steht der Bau für eine Haltung, die Architektur als soziale Infrastruktur versteht – als Bühne, auf der das urbane Leben Tag für Tag neu verhandelt wird.
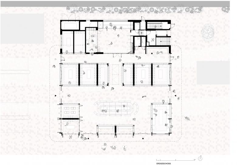
Der Marktraum bildet das neue Entrée des Naschmarkts und setzt zugleich ein Zeichen für eine zeitgemäße Marktkultur. Er ist als überdachte Fortführung des Bauernmarkts gedacht – ein Ort, der den Handel mit regionalen Lebensmitteln stärkt und den Produzent:innen Wiens ein dauerhaftes, wetterunabhängiges Zuhause gibt. Zugleich vermittelt der Bau räumlich wie visuell zwischen dem
Marktamt und den bestehenden Holzpavillons und fügt sich selbstverständlich in das vertraute Marktbild ein.
Als hybrider Leichtbau ruht der Marktraum auf schlanken Stützen über dem Wienflussgewölbe. Das Tragwerk ermöglicht größtmögliche Offenheit und Flexibilität, während ein Untergeschoss als Technikraum dient, um die knappe Erdgeschossfläche optimal zu nutzen. Die Fassade aus grün lasierter Lärche verankert das Gebäude im Ort und greift das charakteristische
Farbspektrum des Naschmarkts auf. Im Inneren schaffen hell geölte Eichenoberflächen Wärme und Helligkeit, während der durchgehende Terrazzoboden in changierenden Rosétönen – gefertigt von der österreichischen Firma Gierer – innen und außen verbindet und die Idee eines durchgehenden Raumes unter einem offenen Dach betont. Die großflächig öffenbaren Fassaden und ein zentraler öffentlicher Durchgang machen das
Gebäude durchlässig und schaffen Sicht- und Wegebeziehungen zwischen Markt, Vorplatz und Umgebung.
Im Inneren gliedern zwölf Marktstände, eine Marktbar, die lange Markttafel und der
Workshopraum den Raum. Der Workshopraum mit angeschlossener Küche bietet Platz für Veranstaltungen rund um Ernährung und ermöglicht gemeinsames Kochen, Lernen und Austausch.
Über dem Marktraum öffnet sich eine begrünte, öffentlich zugängliche Dachterrasse – ein konsumfreier Treffpunkt und neuer Stadtbalkon. Zwischen Grüninseln und Stauden entsteht ein Ort der Wissensvermittlung und des Verweilens. Von hier aus bietet sich ein weiter Blick über das Wienzeilenensemble, die Otto-Wagner-Häuser, den Markt und den neuen Naschpark.
So wird die Dachterrasse zu einem Ort der Ruhe und des Überblicks – ein offener Garten über dem Markt, der Stadt und Natur miteinander verbindet.
Vom Parkplatz zum Stadtpark
Die Entstehung des Marktraums ist Teil eines längeren Weges, der 2017 begann:
Damals verwandelte Mark Neuner gemeinsam mit dem Kollektiv Team Wien im Rahmen der Vienna Biennale den Parkplatz am Naschmarkt temporär in einen offenen Stadtraum – die Aktion trug den Namen „Park macht Platz“.
Sie zeigte, welches Potenzial die Fläche als gemeinschaftlich genutzter Ort besitzt.
Heute wird diese Idee dauerhaft Wirklichkeit.
Der Marktraum ist das gebaute Zentrum eines mehrstufigen Transformationsprozesses, der den Naschmarkt von einer Asphaltfläche zu einer klimaaktiven, gemeinschaftlichen Stadtlandschaft wandelt.
Das Projekt wurde von Mostlikely Architecture in enger Zusammenarbeit mit DnD
Landschaftsplanung und Thomas de Martin entwickelt – ausgezeichnet mit dem 1. Preis im EU-weiten Wettbewerb. Gemeinsam entstand eine Vision, die Architektur und Freiraum untrennbar denkt: der Marktraum als sozialer Mittelpunkt, der Naschpark als grüne Lunge und klimatische Ressource für die Nachbarschaft.
Ein Markt im Wandel
Das Gesamtprojekt wird in mehreren Etappen umgesetzt:
Der Naschpark wurde bereits im September 2025 eröffnet und erfreut sich bereits großer Beliebtheit als grüne Oase und konsumfreier Treffpunkt.
Mit dem nun eröffneten Marktraum folgt das neue Zentrum des Areals.
2026 wird die angrenzende Mottomarkt-Fläche umgestaltet – unter der Woche dient sie als Aufenthaltsraum und Marktplatz, am Wochenende als Standort des Bauernmarkts, der künftig an mehreren Tagen pro Woche stattfinden wird.
2027 wird schließlich die multifunktionale Fläche im Osten umgebaut.
Sie bleibt Heimat des Flohmarkts und kann zugleich als Bühne, Spielfeld oder öffentlicher Treffpunkt genutzt werden.
Die Freiflächen rund um den Marktraum – der ehemalige Mottomarkt und der neue Vorplatz – bieten Raum für saisonale Märkte, gemeinsames Kochen und Nachbarschaftsfeste. Der Marktraum bildet dabei das Herzstück: ein Ort, von dem aus das Marktgeschehen, das Lernen und das Feiern
ihren Ausgang nehmen.
Gemeinsam handeln, gemeinsam wachsen
Der Marktraum am Naschmarkt steht für eine Architektur, die nicht trennt, sondern verbindet: Stadt und Alltag, Klima und Kultur, Menschen und Märkte.
Für Mostlikely Architecture ist er Ausdruck einer langjährigen Auseinandersetzung mit dem Markt als sozialem Raum – ein Ort, der Lebensqualität mit Lebensmittelqualität verbindet und Wiens Marktkultur in die Zukunft trägt.
- Anno
- 2025
- Stato del progetto
- Costruito
- Cliente
- MA 59, Stadt Wien
- GU / Landschaftsplanung
- DnD Landschaftsplanung
- Statik
- Bollinger+Grohmann
- Infrastruktur / Brandschutzplanung
- Axis Ingenieure
- Verkehrsplanung
- FCP Verkehrsplanung
- Bauphysik / HKLS
- Bauklimatik
- Elektroplanung
- Allplan
- Marktexpertise
- Thomas de Martin
- Project Management
- WGM - Wiener Gewässer Management













