Obertor Ilanz
Könnte das Restaurant Obertor die vielen Geschichten erzählen, die es in den vergangenen Jahren als Teil der Ilanzer Altstadt erlebt hatte, würde es Bücher füllen. Nach Jahren des Umbruchs und der Renovation, auch der äusseren Erscheinung, war das Gebäude Ende 2016 bereit für neue Geschichten.
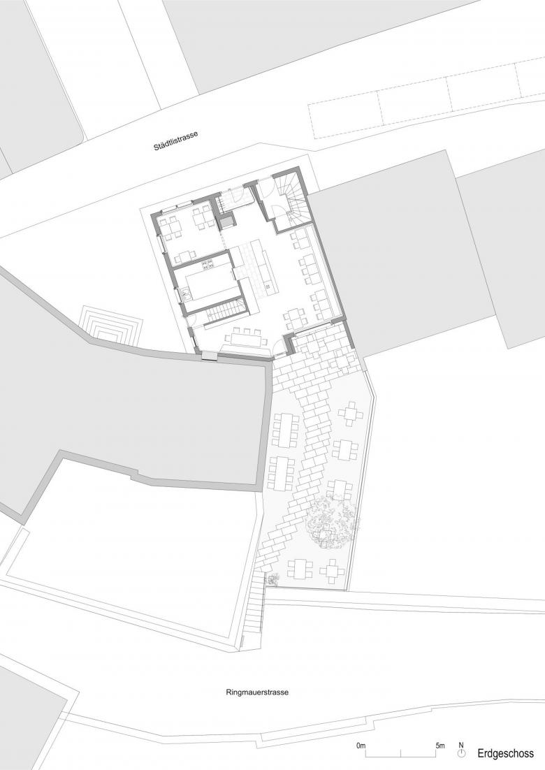
Das Gebäude vereint öffentlichen Raum und Wohnen miteinander. In den Obergeschossen befinden sich zwei sorgfältig renovierte 3.5-Zimmer-Wohnungen. Im Parterre ist das Restaurant in zwei Gaststuben aufgeteilt. Angrenzend zum Barbereich befindet sich die kompakte Profiküche. Das Bijou bietet eine traumhafte Sonnenterrasse.
Wandverkleidungen aus Arve, Tische aus Nussbaum und ein massiver Eichenboden zieren die Räume. Die schlichte Bar aus schwarzem Stahlblech sorgt als modernes Element für eine stimmige Kommunikation zwischen Tradition und Moderne.
- Anno
- 2016
- Stato del progetto
- Costruito







