Plot 2186-2187
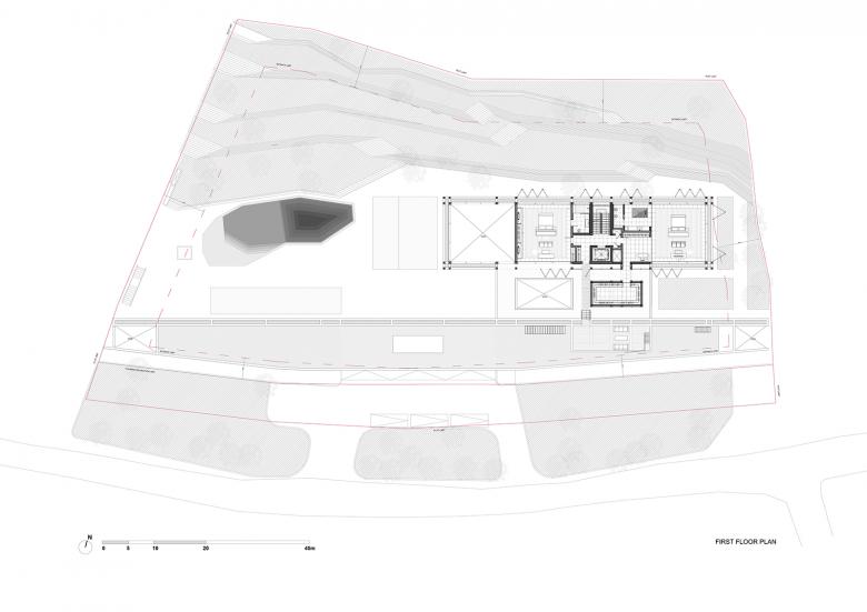
Plot # 2186-2187 is a private residence located on a site of 3,714 square meters of surface area in Sakiet El Misk, Mount Lebanon; a region 24 kilometers west of Beirut, at an altitude of approximately 900 meters above sea level. With a total built-up area of 2,390 square meters, the proposed scheme is based on the desire to preserve and take advantage of the large number of pine trees scattered throughout the site, particularly dense at the center. The trees, along with a 10-meter drop at the northern periphery of the site, as well as a delineated 5.4-wide strip at the south deemed off-limits due to future plans of enlarging the street; jointly formed the constraints which led to the resulting programmatic organization of the project.
The suggested scheme thus occupies two articulated entities, somewhat separating various independent programmatic functions. In an effort to simultaneously allow for its experience of the northern view as well as that of the central lush garden of pines, the main residential volume was placed at the northwestern corner of the site, with its outdoor swimming pool and terrace on the other side of the pinery, enjoying the same views. This three-floor volume houses four master bedrooms, a 10.25-high reception space and main kitchen. The remaining strip of land between the central pinery and the setback from the street houses a 76-by-7.5-meter one-storey volume, serving as a structure that simultaneously fences off the plot and accommodates the remaining programmatic functions. This bar, spanning and enclosing the entire length of the site's street-fronting periphery, contains a lavish vehicular reception space, where cars enter from one gate to either drop visitors off and exit from another, or use the car lift to access the underground parking. This grandiose space is afforded a view of the pine garden on one side, and the street on the other, through fully-glazed retractable walls. The rest of the longitudinal volume consists of an indoor pool, a spa, a gym, as well as the numerous staff quarters and storage spaces.
The project facades are completely clad in retractable wooden louvers, rendering the house as a striking wooden monolith when closed, and when opened, as a flood-lit and extremely airy structure in direct relation with the surrounding forest, blurring the line between interior and exterior.
- Anno
- 2020
- Stato del progetto
- Costruito























